EasyManua.ls Logo

Acson WM07G - Spezielle Vorkehrungen Beim Beschäftigen R410 A Maßeinheit; Vakuum und Aufladen

Acson WM07G
100 pages
Print Icon
To Next Page IconTo Next Page
To Next Page IconTo Next Page
To Previous Page IconTo Previous Page
To Previous Page IconTo Previous Page
Loading...
3-7
Deutsch
Modell
07 / 09 / 10 / 15G
07 / 09 / 10 / 15GR
20G
20GR
25G
25GR
10m/32,8ft 12m/39,4ft 15m/49,2ft
35 65
50 90
35 65 110
60 110 185
90 165 280
120 220 370
Modell
07 / 09 / 10 / 15G
07 / 09 / 10 / 15GR
20G
20GR
25G
25GR
10m/32,8ft 12m/39,4ft 15m/49,2ft
35 60
45 80
35 60 100
55 100 165
80 150 255
110 200 335
SPEZIELLE VORKEHRUNGEN BEIM BESCHÄFTIGEN R410A MAßEINHEIT
R410A ist ein neues HFC Kühlmittel, das nicht die Ozon-
Schicht beschädigt. Der Funktion Druck dieses neuen
Kühlmittels ist 1.ist 6mal stark als herkömmliches Kühlmittel
(R22), so korrektes installation/servicing wesentlich.
Nie Kühlmittel des Gebrauches anders als R410A in einer
Klimaanlage, die entworfen ist, um mit R410A zu funktionieren.
POE Öl wird als Schmiermittel für R410A copressor
benutzt, das zu dem Mineralöl unterschiedlich ist, das
für Kompressor R22 benutzt wird. Während der Instal-
lation oder der Wartung muß weitere
Vorsichtsmaßnahme genommen werden, um das R410A
System auszusetzen, das nicht feuchter Luft zu lang ist.
Rest-POE Öl in der Rohrleitung und Bestandteile cn
saugen Feuchtigkeit von der Luft auf.
Dem Aufflackernventil zu dem von R22 unterschiedlich.
Benutzen Sie Werkzeuge und Materialien ausschließlich
für Kühlmittel R410A. Werkzeuge ausschließlich für
R410A sind vielfältiges Ventil, aufladenschlauch,
Druckanzeiger, GasleckstellDetektor, Aufflackern-
werkzeuge, Drehkraftschlüssel, Vakuumpumpe und
Kühlmittelzylinder.
Da eine R410A Klimaanlage auf höheren Druck als
Maßeinheiten R22 sich nimmt, ist es wesentlich, die
kupfernen Rohre richtig zu wählen. Nie kupferner
Rohrverdünner des Benutzers als 0,8mm obwohl sie im
Markt vorhanden sind.
Wenn das Kühlmittelgas während der Installation /ser-
vicing ausläuft, seien Sie sicher, völlig zu lüften. Wenn
das abkühlende Gas in Kontakt mit Feuer kommt, kann
ein giftiges Gas auftreten.
Wenn Sie eine Klimaanlage, lassen Sie Luft oder
Feuchtigkeit nicht im abkühlenden Zyklus bleiben
anbringen oder entfernen.
VAKUUM UND AUFLADEN
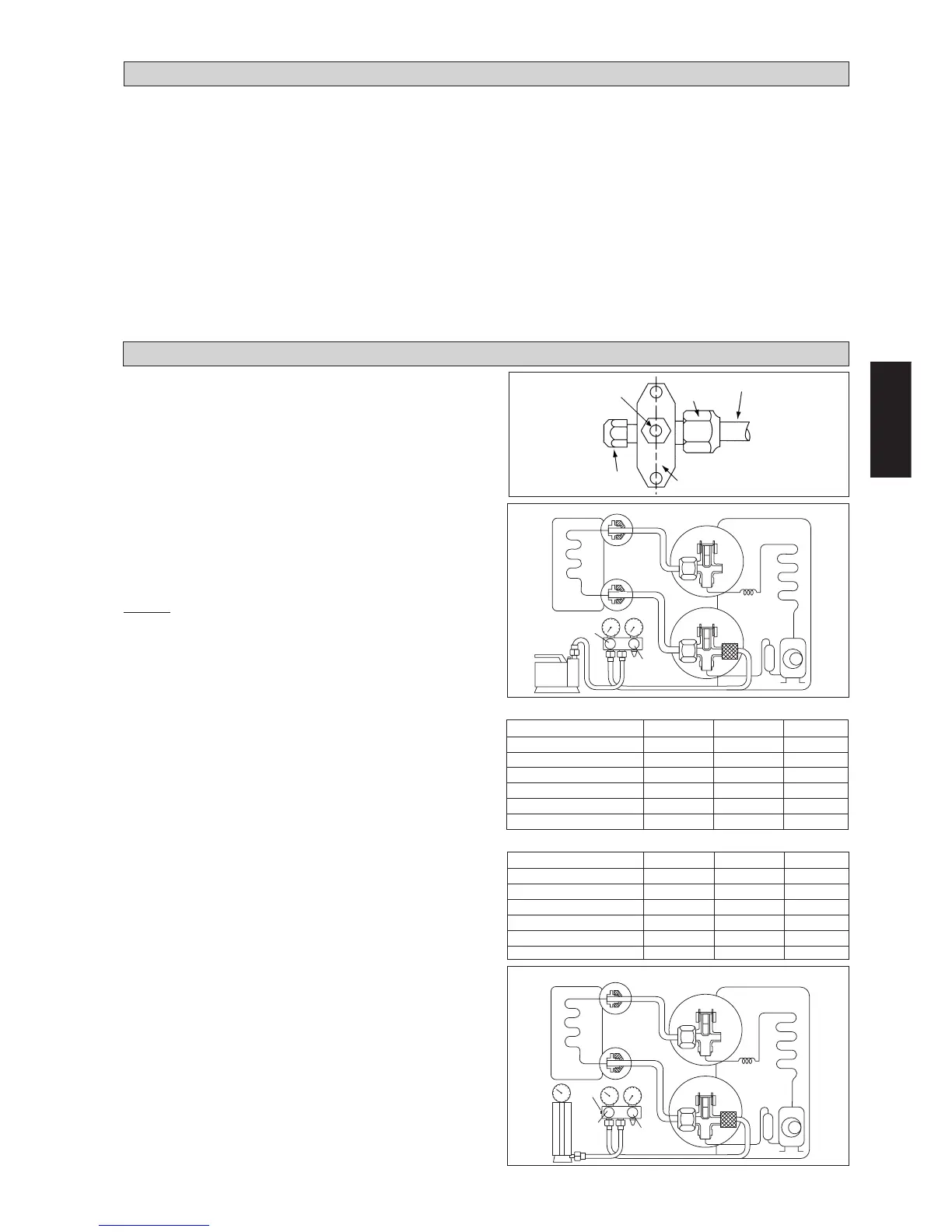
Entlüftung der leitung und des innenmontage Gerätes
Mit der Ausnahme des Außenmontage-Gerätes, welches mit dem
Kältemittel R22 vorbefüllt ist, müssen das Innenmontage-Gerät sowie
die Kältemittel-Anschlußleitungen entlüftet werden, da Feuchtigkeit
im Kühlkreis zu einer Funktionsstörung des Kompressors führen kann.
Die Abdeckungen vom Ventil und dem Wartungsanschluß
abnehmen.
Den Lademesser von der Mitte aus an die Vakuumpumpe
anschliessen.
Den Lademesser an die Wartungsöffnung des 3-Weg-Ventils
anschliessen.
Die Vakuumpumpe einschalten und etwa 30 Minuten laufen
lassen. Die Evakuierungszeiten sind je nach Kapazität der
Pumpe verschieden. Darauf achten, dass die Nadel des
Lademessers bei –760mmHg steht.
Achtung
Falls die Nadel des Lademessers nicht bei –760mmHg steht,
ist nachzuprüfen (mit dem Kältemittel-Anzeigegerät), ob an
der aus dem aufgeweiteten Rohr bestehenden Verbindung
zwischen Innen- und Außen-Gerät ein Gasleck besteht. Vor
Ausführen des nächsten Schrittes muss das Leck behoben
werden.
Das Ventil des Lademessers schliessen und und die
Vakuumpumpe abschalten.
Am Außen-Gerät das Saugventil (3-Weg-Ventil) und das
Flüssigkeitsventil (2-Weg-Ventil) mit einem 4mm-Schlüssel
für 6-kantige Sackschrauben öffnen (gegen den
Uhrzeigersinn).
Gesamttest
Das Außenmontage-Gerät ist bereits werkseitig mit Kältemittel
befüllt. Falls die Rohrleitung unter 7,62 m(25ft) Länge aufweist,
ist eine zusätzliche Kältemittelbefüllung nach der Herstellung
desVakuums nicht erforderlich. Wenn die Rohrleitung länger als
7,62m(25ft) ist, sollte ein zusätzliches Speiseventil gemäß den
Angaben in der untenstehenden Tabelle verwendet werden.
Kältemittel-Zusatzbefüllung
Dieser Arbeitsgang erfordert unbedingt den Einsatzeines Gas-
Füllzylinders sowie einer Präzisionswaage. Die Zusatzbefüllung
erfolgt am Außenmontage-Gerät mithilfe des Ansaugventils und
dem Wartungsanschluß.
Abdeckung der Wartungsöffnung entfernen.
Die Niederdrucköffnung des Lademessers an den
Ansauganschluss des Gaszylinders anschliessen und die
Hochdrucköffnung des Lademessers schliessen. Die
verbleibende Luft aus dem Zulieferschlauch entfernen.
Klimaanlage einschalten.
Den Gaszylinder und das Niederdruck-Ladeventil öffnen.
Sobald die benötigte Kältemittelmenge in das Gerät
eingepumpt ist, werden die Niederdrucköffnung des
Lademessers und der Gaszylinder geschlossen.
Den Zulieferschlauch vom Gaszylinder entfernen und
dieZylinder-Abdeckung wieder anbringen.
Wartungsanschluss
Außen-Gerät-3-Wege-ventil
Gewinde-
Überwurf
Kältemittel-leitung
Sechskantsteckschlüssel
Zusatzfüllung in Gramm (Für R22 Modell)
Zusatzfüllung in Gramm (Für R410A Modell)
Ablaufventil
Außen-GerätInnen-Gerät
Vakuum-
Pumpe
Offen
Geschlossen
Hi
Lo
Flüssigkeitsleitung
Sauggasleitung
Gesch-
lossen
Gesch-
lossen
Saugventil
Ventil
Prufen
Außen-Gerät
Offen
Offen
Hi
Lo
Ablaufventil
Geschlossen
Flüssigkeitsleitung
Sauggasleitung
Saugventil
Innen-Gerät

Table of Contents

Related product manuals