EasyManua.ls Logo

Acson WM07G - Precauzioni Speciali Per Lutilizzo DI R410 A; Vuoto E Carica

Acson WM07G
100 pages
Print Icon
To Next Page IconTo Next Page
To Next Page IconTo Next Page
To Previous Page IconTo Previous Page
To Previous Page IconTo Previous Page
Loading...
4-7
Italiano
Modello
07 / 09 / 10 / 15G
07 / 09 / 10 / 15GR
20G
20GR
25G
25GR
10m/32,8ft 12m/39,4ft 15m/49,2ft
35 65
50 90
35 65 110
60 110 185
90 165 280
120 220 370
Modello
07 / 09 / 10 / 15G
07 / 09 / 10 / 15GR
20G
20GR
25G
25GR
10m/32,8ft 12m/39,4ft 15m/49,2ft
35 60
45 80
35 60 100
55 100 165
80 150 255
110 200 335
PRECAUZIONI SPECIALI PER L’UTILIZZO DI R410A
VUOTO E CARICA
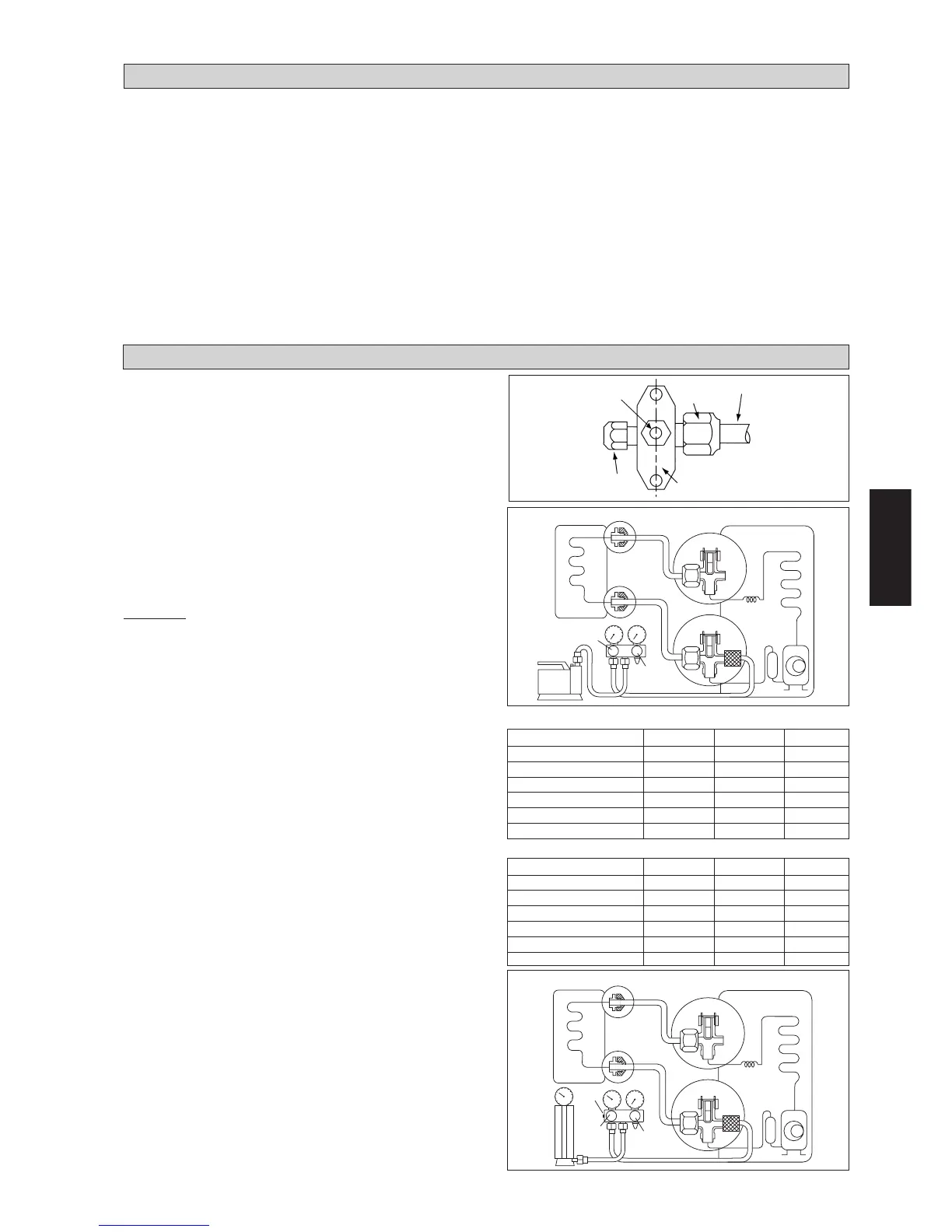
Vuoto
Fatta eccezione dell’unità esterna che è precaricata, l’unità
interna e le tubature di collegamento devono essere spurgate
dell’aria. Essa contiene infatti dei residui di umidità prodotti
dal ciclo di raffreddamento che possono provocare un
malfunzionamento del compressore.
Rimuovere i tappi della valvola e dell’attacco di servizio.
Collegare il centro della valvola di carico alla pompa di
estrazione.
Collegare la valvola di carico alla bocchetta di servizio
della valvola a 3 vie.
Avviare la pompa di estrazione. Far spurgare per 30 minuti
circa. Il tempo di spurgo varia a seconda della capacità
della pompa di estrazione. Controllare che l’ago della
valvola del collettore si sia portata su -760mmHg.
Attenzione
Se l’ago non si sposta su -760mmHg, controllare che non
ci siano perdite di gas (utilizzando il rivelatore di fughe)
in prossimità tra unità interna ed esterna ed esterno e
riparare la perdita prima di procedere.
Chiudere la valvola di carico e spegnere la pompa di
estrazione.
Sull’unità esterna, aprire la valvola di aspirazione a 3 vie e
la valvola per il liquido a due vie in senso anti-orario con
una brugola di 4mm.
Carica Addizionale
L’unità esterna è provvisto di refrigerante, precaricato in
fabbrica. Se la lunghezza del tubo è inferiore a 7,62m (25ft),
dopo l’aspirazione non è necessaria alcuna carica addizionale.
Se la lunghezza dei condotti è superiore ai 7,62m (25ft), usare
i valori di carica addizionale come indicato nella tabella
riportata di seguito.
Operazioni di carica
Tale operazione deve essere obbligatoriamente effettuata
utlizzando la borbala del gas ed una bilancia di precisione. Il
gas refrigerante viene introdotto nell’unità esterna tramite la
bocchetta di servizio della valvola aspirante.
Rimuovere il tappo della bocchetta di servizio.
Collegare il collettore a bassa pressione alla bocchetta di
aspirazione del serbatoio cilindrico e chiudere il collettore
ad alta pressione. Spurgare l’aria dal tubo flessibile.
Mettere in funzione il condizionatore.
Aprire il cilindro del gas e la valvola del collettore a bassa
pressione.
Quando la quantità richiesta di refrigerante è stata pompata
nell’impianto, chiudere la valvola del collettore a bassa
pressione e la valvola del cilindro del gas.
Scollegare il tubo flessibile dalla bocchetta di servizio.
Rimettere il tappo della bocchetta di servizio.
Bocchetta di servizio
Valvola a 3 vie dell’unità esterna
Dadi di
svaso
Condotti del refrigerante
Brugola
Ricarica Addizionale in grammi (Per R22 modello)
Ricarica Addizionale in grammi
(Per R410A modello)
Unità Esterna
Unità Interna
Liquido
Gas
Aperto
Aperto
Valvola
di scarico
Valvola Di
Aspirazione
Chiuso
Lo
Valvola di
controllo
Hi
Unità Esterna
Unità Interna
Liquido
Gas
Pompa Di
Estrazione
Aperto
Chiuso
Chiuso
Valvola
di scarico
Valvola Di
Aspirazione
Chiuso
Hi
Lo
L R410A è un refrigerante ecologico HFC che non danneggia lo
strato di ozono. Le pressioni di esercizio dell’ R410A sono circa
1,6 volte superiori a quelle dell’R22 - sono preranto opportune
alcune precauzioni nel condurre le operazioni di installazione e
manutenzione.
Utilizzare esclusivamente R410A nelle unità destinate ad
operare contale refrigerante.
Con R410A, utilizzare esclusivamente olio di tipo POE.
Inoctre assicurarsi, durante le operazioni di installazione
e, amutenzione, di non esporre il sistera all’alla per troppo
tempo. Eventuale residui di olio POE presenti nelle
tubazioni possono assorbire l’uridità e quindi pregiudare
il corretto funzionamento del condizionatore.
Al fine di prevenire errori nella carica del refrigerante,
l’orifizio della valvola di carico è specifico per R410A.
Usare esclusivamente attrezzatura e materiali idonei ad
operare con R410A. Esempi di attrezzatura sono;
manometri, rilevatori di perdite, tubi fuessibili, pompa del
vuoto, borbola refrigerante, etc.
Poichè il condizionatore con R410A va vora con pressioni
cosí elevate, è essenziale scegliere correttamente lo
spessore delle tubazioni in rame; non deve mai essere
inferiore a 0,8mm.
Qualora dovessero verificarsi fughe di refrigerante durante
le operazioni di installazione o manutenzione, assicurarsi
di ventilare l’area mediatamente e per un tempo prolungato
(particolare attenzione va posta nel caso il refrigerante entri
incontatto con del fuoco unquanto si possono spriguonare
gas mossici).

Table of Contents

Related product manuals