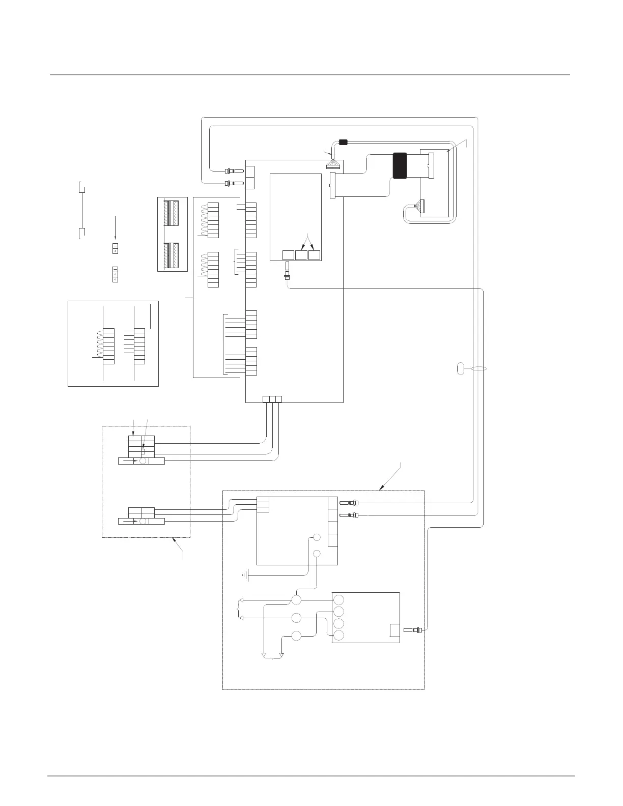
96A0357 Rev. F
ST1
ST2
ST4
44A6510/26
1
J10
J9
FOR CCR'S THAT REQUIRE CC AND STEP
COMMAND, WIRE J5 AS SHOWN ABOVE
(APPLIES TO OLDER CCR'S: HEAVY DUTY,
ADB, ETC.).
NOTES:
1. (FOC) FIBER-OPTIC INTERFACE CABLES.
2. WIRE GAUGES AND NUMBERS:
- 300 SERIES WIRE NO.S ARE 89A0086/1; 12AWG 25KVDC 150C WHT.
- 500 SERIES WIRE NO.S ARE 89A0182/9; 18 AWG, 600V, 105C, WHT.
- 800 SERIES WIRE NO.S ARE 89A0163/5; 12 AWG, 600V, 105C, WHT.
- 900 SERIES WIRE NO.S ARE 89A0163/7; 18 AWG, 600V, 105C, GRN/YEL
3. VERIFY SHUNTS ON CONTROL BOARD; J2 & J15.
4. ACE & IRMS FUSES ARE: 3.2A, 250V, SB (SAS #47A0181).
5. GROUND ACE COMBO BOX CHASSIS USING 12AWG GROUND
WIRE (89A0163/5) FOLLOWING THE DIAGRAM BELOW:
BOLT ON LEFT SIDE
ENCLOSURE GND.
ENCLOSURE DOOR
GROUND
WHT / BLU
SHIELD
ORG / WHT
WHT / ORG
BLU / WHT
WHT / BLU
BLU / WHT
SHIELD
WHT / ORG
ORG / WHT
SEE DETAIL 1
DETAIL 1:
J5-TOP
B3
CC
B1
B2
B4
B5
78456123
(COLORS IF BELDEN 9842 IS USED)
CONTRACTOR
WIRING
B4
PP
U16
GREY
U17
BLUE
J4-TOP
R/L
687 543
CC
B2
B3
21 87
OPTIONAL 2 & 3 CHAN.
LAMPS OUT BOARD
J12
U24
BLUE
(44A4802/1; 1-CH)
U21
BLUE
U28
BLUE
CONTROL BOARD
COM A
J8
J5-TOP
B5
3654 21
56
COM B
124
36
2
3
4
5
1
(44A6377)
ACE II MAIN
JUMPER
GND
GND
GND
120VAC CCR
IRMS PWR FROM
120VAC UPS
ACE PWR FROM
G / Y
TERM. BLK.
COLORS
#72A0368/1
G / Y
IN
(FUSES: SEE NOTE 4)
GRY
GRY
FUSE
IN
GRY
G / Y
FUSE
USED ON "COMBO BOX" ONLY -
DIRECT WIRE "REMOTE" & "WALL MT." UNITS
GND LUG
900
120
500
N
N
501
502
901
CCI
N
503
J5
2
502
N
501
J1
900
3
2
1
500
503
1
120
GND
901
3
800
(IRMS-LI; 44A6397)
OPTIONAL
MODULE (IRM)
INSULATION RESISTANCE
800
J4
300
J3
300
ST1
ST1
ST4
ST2ST2
IRMS & CVM OPTIONS:
WIRED REMOTELY ON
"WALL MOUNT" AND
"REMOTE" UNITS
2
1
89A0255/32
RIBBON CABLE ASSY.
44A6506
EXT. SWITCH BOARD
J1
2
1
1
J4
NO SWITCH BD. OR CABLES FOR
"REMOTE" ACE II.
NOTE 1
FOC
(SEE PG. 2 FOR 20A WIRING)
6.6A WIRING
(SEE PG. 2 FOR 20A)
(CVM - 6.6 AMP: 44A6326/10)
GREY
U12
CURRENT VOLTAGE
BLUE
U5
GREY
U2 U8
GREY BLUE
U6
ST2ST1 ST3
MODULE
ST4
J5-BOTTOM
6
J4-BOTTOM
5786 2341 7845312
COM
CCI
J5-BOTTOM
CCI
82167354
J4
(J4, J5 FRONT VIEW)
(BOTTOM ROW)
(TOP ROW)
J5
8181
J15
1
WATCHDOG
1
J2
OUTPUT
AIRFIELD
SERIES
CIRCUIT
To CCR
Output
P1 P2 P3