EasyManua.ls Logo

ADB ACE2 - Page 47

ADB ACE2
50 pages
Print Icon
To Next Page IconTo Next Page
To Next Page IconTo Next Page
To Previous Page IconTo Previous Page
To Previous Page IconTo Previous Page
Loading...
© ADB Airfield Solutions All Rights Reserved 41
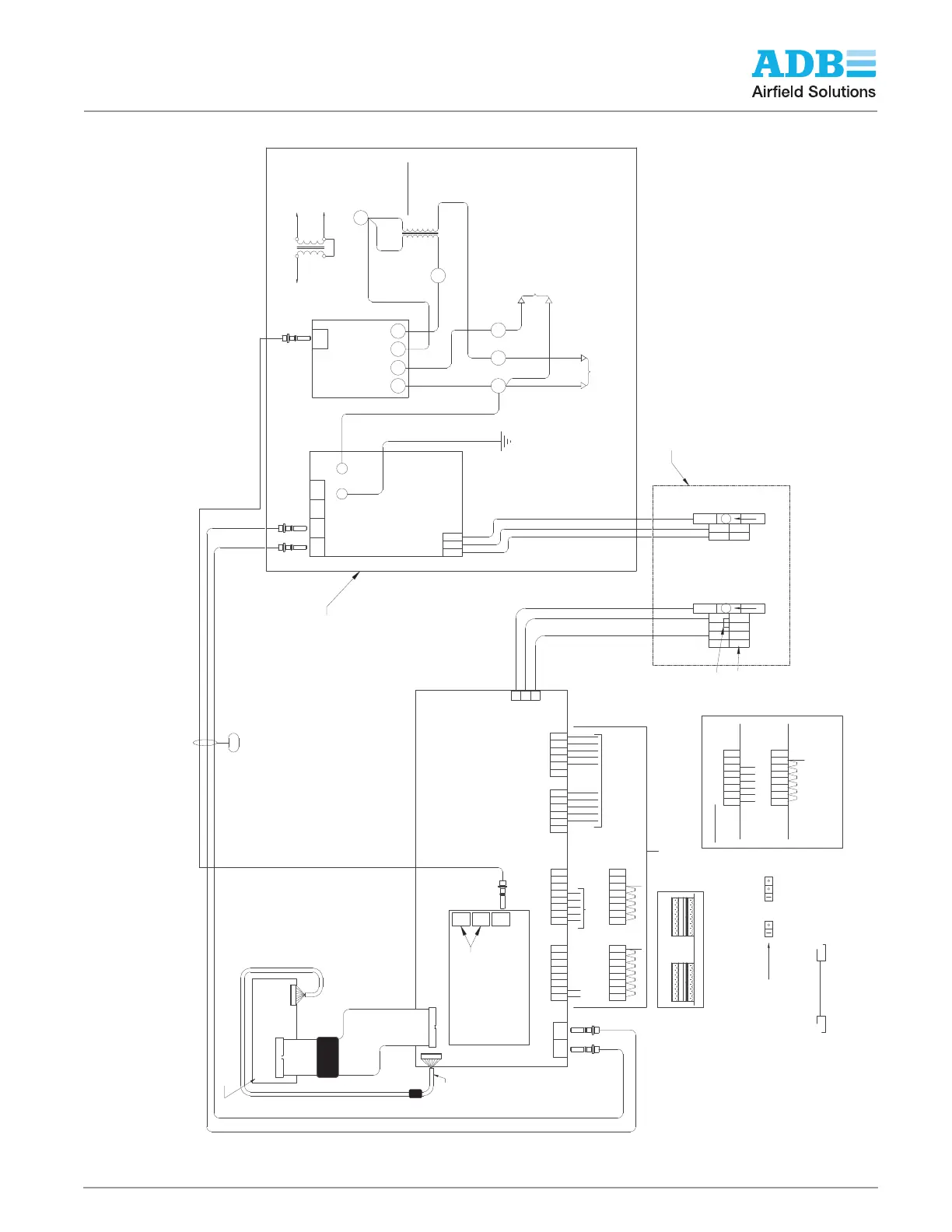
Figure 28: ACE Combo/Wall-Mount Internal
44A6510/26
1
J10
USED ON "COMBO BOX" ONLY -
DIRECT WIRE "REMOTE" & "WALL MT." UNITS
#72A0368/1
GND
GND
GND
TERM. BLK.
COLORS
120VAC UPS
ACE PWR FROM
IN
GRY
G / Y
G / Y
GRY
FUSE
120VAC CCR
IRMS PWR FROM
IN
(FUSES: SEE NOTE 4)
G / Y
GRY
FUSE
ACE II MAIN
(44A6377)
1
CONTROL BOARD
(COLORS IF BELDEN 9842 IS USED)
WHT / BLU
BLU / WHT
ORG / WHT
WHT / ORG
SHIELD
(44A4802/1; 1-CH)
OPTIONAL 2 & 3 CHAN.
LAMPS OUT BOARD
U17
BLUE
U16
GREY
J12
J8
COM A
4
65 3
2
U24
BLUE
U21
BLUE
U28
BLUE
WHT / BLU
ORG / WHT
WHT / ORG
BLU / WHT
SHIELD
501
JUMPER
500
120
900
N
N
CCI
901
502
N
503
501
2
1
3
COM B
J9
2
6
4
35
1
J1
900
500
GND LUG
503
502
901
120
GND
N
800
ST1
ST1
P2
ST2ST2
300
(SEE PG. 1 FOR 6.6A WIRING)
20A WIRING
2
1
RIBBON CABLE ASSY.
89A0255/32
1
1
2
J1
J4
44A6506
EXT. SWITCH BOARD
NO SWITCH BD./CABLES FOR
"REMOTE" ACE II.
OPTIONAL
INSULATION RESISTANCE
MODULE (IRM)
(IRMS-LI; 44A6397)
J5
231
800
BLUE
U8U2
GREYBLUE
U5
J4
J3
300
GREY
U6
NOTE 1
FOC
ST1
ST2
ST3
ST4
CURRENT VOLTAGE
MODULE
(SEE PG. 1 FOR 6.6A)
(CVM - 20 AMP: 44A6326/11)
GREY
U12
NOTES:
1. (FOC) FIBER-OPTIC INTERFACE CABLES.
2. WIRE GAUGES AND NUMBERS:
- 300 SERIES WIRE NO.S ARE 89A0086/1; 12AWG 25KVDC 150C WHT.
- 500 SERIES WIRE NO.S ARE 89A0182/9; 18 AWG, 600V, 105C, WHT.
- 800 SERIES WIRE NO.S ARE 89A0163/5; 12 AWG, 600V, 105C, WHT.
- 900 SERIES WIRE NO.S ARE 89A0163/7; 18 AWG, 600V, 105C, GRN/YEL
3. VERIFY SHUNTS ON CONTROL BOARD; J2 & J15.
4. ACE & IRMS FUSES ARE: 3.2A, 250V, SB (SAS #47A0181).
5. GROUND ACE COMBO BOX CHASSIS USING 12AWG GROUND
WIRE (89A0163/5) FOLLOWING THE DIAGRAM BELOW:
J5-TOP
ENCLOSURE GND.
BOLT ON LEFT SIDE
ENCLOSURE DOOR
GROUND
FOR CCR'S THAT REQUIRE CC AND STEP
COMMAND, WIRE J5 AS SHOWN ABOVE
(APPLIES TO OLDER CCR'S: HEAVY DUTY,
ADB, ETC.).
CCI
B5
B4
B3
B2
B1
CC
J5-BOTTOM
84576 3 12
82167354
(J4, J5 FRONT VIEW)
(BOTTOM ROW)
J4
8
(TOP ROW)
18
CONTRACTOR
WIRING
J5
1
DETAIL 1:
COM
CCI
78465 123
J4-BOTTOM
R/L
PP
48576 123
J5-BOTTOM
SEE DETAIL 1
B5
B2
CC
B4
B3
J4-TOP
87 465 132
J5-TOP
48576 213
IRMS & CVM OPTIONS:
WIRED REMOTELY ON
"WALL MOUNT" AND
"REMOTE" UNITS
1
WATCHDOG
1
J15
J2
OUTPUT
AIRFIELD
SERIES
CIRCUIT
To CCR
Output
P1 P2 P3
ST3
ST2ST1 ST3 ST4
P5
ST4
ST3
P2
ST3
P4
ALTERNATE TX 35A0308
P2
44A6437 TX ASSY .
P2
S2
P1
S1
LARGE
WIRE
12AWG
SMALL
WIRE
18AWG
304
P5
P4

Related product manuals