EasyManua.ls Logo

AirSep AS-E - Page 73

AirSep AS-E
198 pages
Print Icon
To Next Page IconTo Next Page
To Next Page IconTo Next Page
To Previous Page IconTo Previous Page
To Previous Page IconTo Previous Page
Loading...
AS-D+—AS-P Series Instruction Manual 73
AirSep Corporation
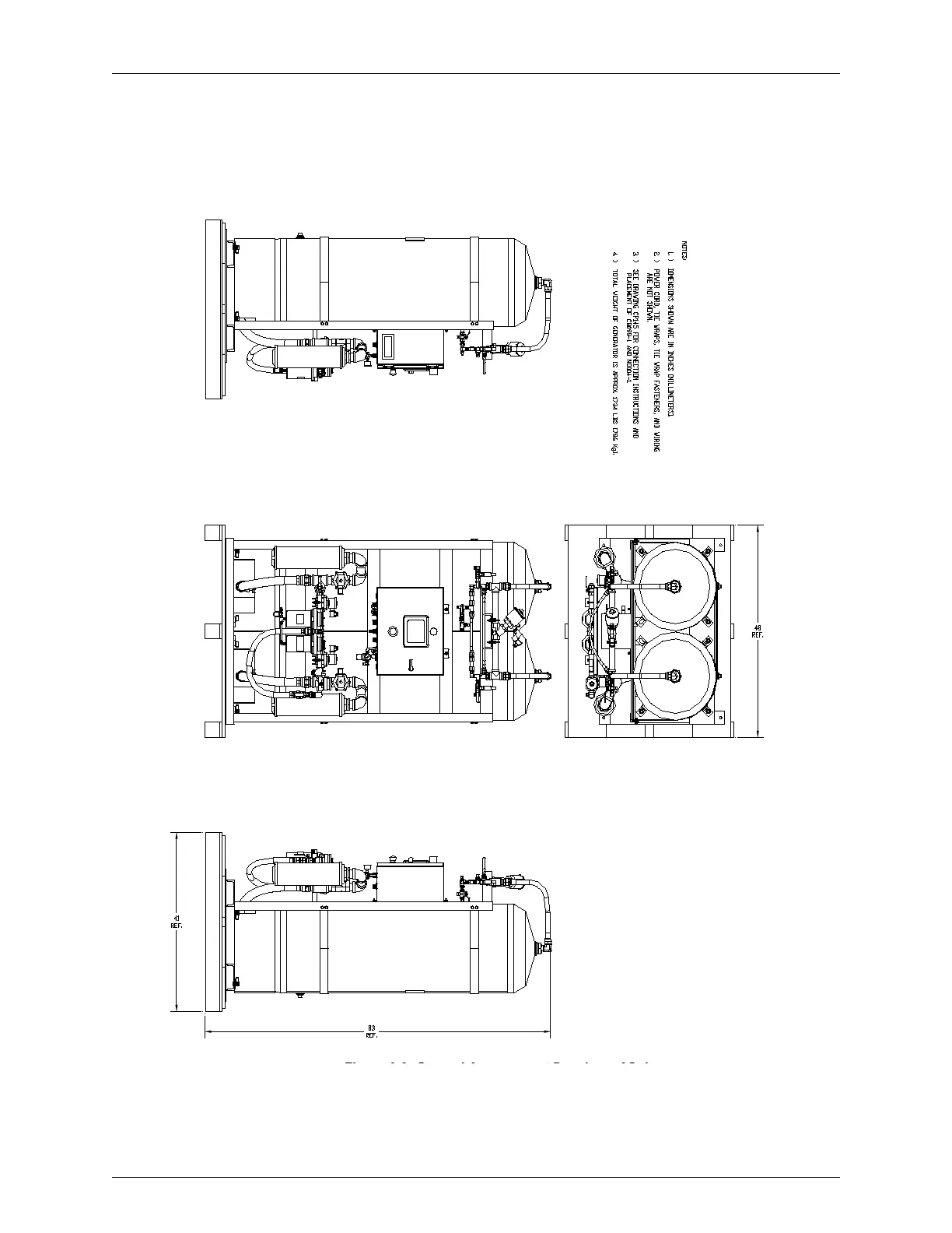
Figure A.9: General Arrangement Drawing – AS-J

Related product manuals