EasyManua.ls Logo

Airwell Wellea Split A R32 - Page 6

Airwell Wellea Split A R32
430 pages
Print Icon
To Next Page IconTo Next Page
To Next Page IconTo Next Page
To Previous Page IconTo Previous Page
To Previous Page IconTo Previous Page
Loading...
05
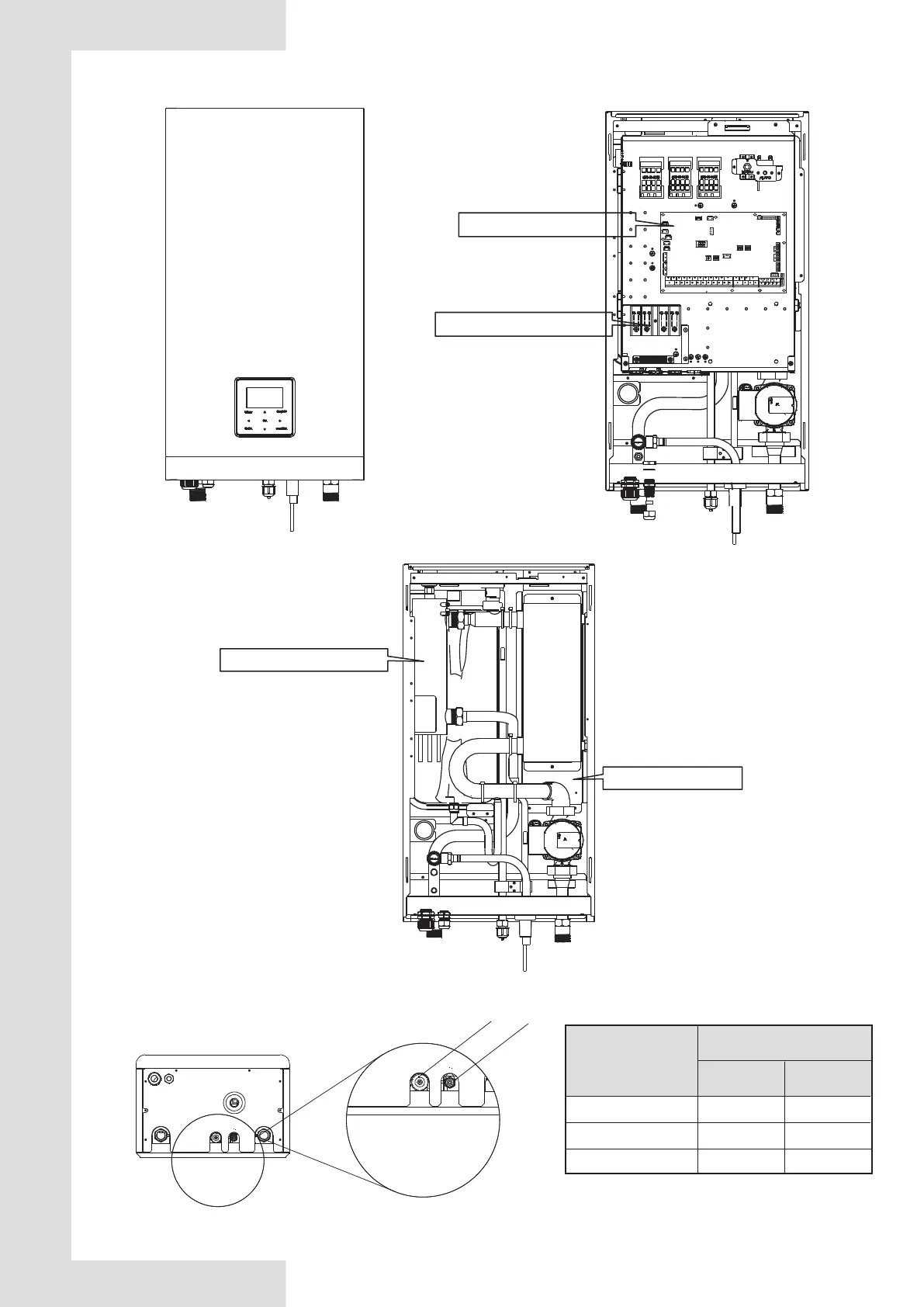
Electric Control Box
Hydraulic System
1
2
Terminal Block
Unit
Diameter
4 - 6 kW
1
1/4"
3/8"
2
5/8"
5/8"
5/8"
8 - 10 kW
12 - 14 - 16 kW
3/8"
Internal backup heater
3029
32
25 26 27 28
31
7
1211
109
18
8
7
5
2322 24
1 2
13
3
4
6
2014 15 17 1916 21
6 8 9
10
5
4321
CN4
CN22
CN5
S3
DIS1
CN24
CN1
CN2
CN6
CN8
CN13
CN15
CN16
CN18
CN28
S2
CN42
CN21
S1
S4
CN11 CN7
CN17
CN30
CN35
CN14 CN19
CN31
CN36
CN25
CN29
CN40
CN41
CL COM HTEVU SG

Table of Contents

Related product manuals