EasyManua.ls Logo

Alemite 9668 - Testing, Installation and Operation; Bench Test and Operation

Alemite 9668
10 pages
Print Icon
To Next Page IconTo Next Page
To Next Page IconTo Next Page
To Previous Page IconTo Previous Page
To Previous Page IconTo Previous Page
Loading...
SER 9668
Medium-Pressure Stub Pump
Revision (1-97) 8 Alemite Corporation
19
2
4
3
5
6
10
9
7
8
11
13
12
14
15
16
17
18
20
21
23
24
25
26
27
28
B
Detail B
A
Detail A
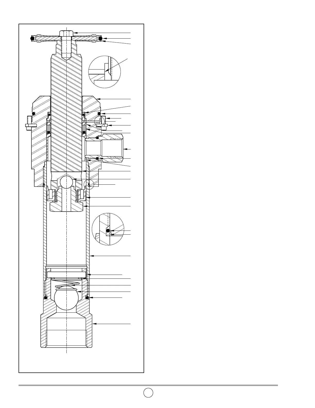
Lower Seal
Weep Hole
Air Piston
20. Install O-Ring (
4
) onto Air Piston (
3
).
21. Place the Air Piston (observe THIS SIDE UP) on top of
the Rod.
22. Install Screw (
2
) that secures the Air Piston to the Rod.
Tighten the Screw securely.
Attach Air Motor to Pump Tube
23. Clamp the Body securely in a soft-jaw vise.
24. Install Air Motor Assembly (1) squarely onto the Body.
Use care passing the O-Ring.
Make sure Outlet Adapter (8) orients properly with
the inlet of the Air Motor.
25. Install Keepers (9) into the groove of the Body.
Make sure the holes align with the Air Motor
Assembly.
26. Install Capscrews (10) that secure the Body to the Air
Motor Assembly.
Tighten the Capscrews evenly and securely in a
crisscross pattern.
Bench Test and Operation
1. Slowly supply air pressure [not to exceed 15 psi
(1 Bar)] to the pump’s motor.
The pump assembly should cycle.
If the pump assembly does not cycle, refer to the
Troubleshooting Chart for details.
With air pressure at zero:
2. Connect a product hose to the pump’s material outlet.
Direct the hose into an appropriate collection
container.
3. Place the pump in oil.
4. Slowly supply air pressure to the pump’s motor.
5. Allow the pump to cycle slowly until the oil is free of
air.
If the pump assembly does not prime, refer to the
Troubleshooting Chart for details.
Figure 4 Pump Tube Assembly 338067-B - Section View
Refer to Figure 2 Parts List
for Parts Identification
1-800-548-1191-http://www.partdeal.com-info@partdeal.com

Related product manuals