EasyManua.ls Logo

Alfa Laval Micro STC2 - 17 Elektrisch Schakelschema; Micro RTC

Alfa Laval Micro STC2
276 pages
Print Icon
To Next Page IconTo Next Page
To Next Page IconTo Next Page
To Previous Page IconTo Previous Page
To Previous Page IconTo Previous Page
Loading...
Alfa Laval Micro
Instructies voor installatie, onderhoud en bediening
49
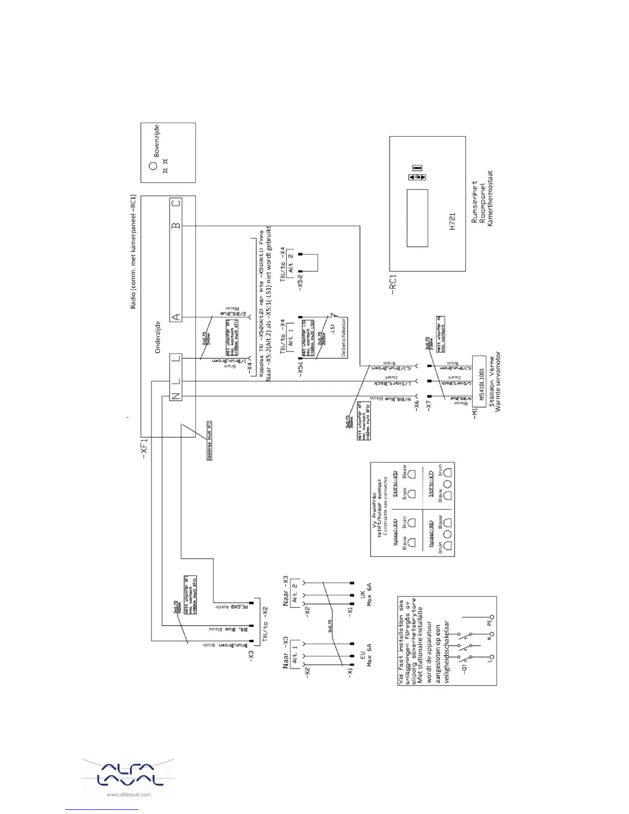
17 Elektrisch schakelschema
17.1 Micro RTC
Afbeelding 37

Table of Contents

Other manuals for Alfa Laval Micro STC2

Related product manuals