EasyManua.ls Logo

Allen-Bradley 1734-OB8E - Appendix B; About this Appendix; POINT I;O Module with a 1734-PDN Module; Mounting Dimensions

Allen-Bradley 1734-OB8E
221 pages
To Next Page IconTo Next Page
To Next Page IconTo Next Page
To Previous Page IconTo Previous Page
To Previous Page IconTo Previous Page
Loading...
Rockwell Automation Publication 1734-UM001E-EN-P - July 2013
Appendix
B
Mounting Dimensions
About This Appendix
Read this appendix for mounting dimensions for the following:
POINT I/O module with a 1734-ADN adapter
POINT I/O module with a 1734-PDN module
POINTBlock modules
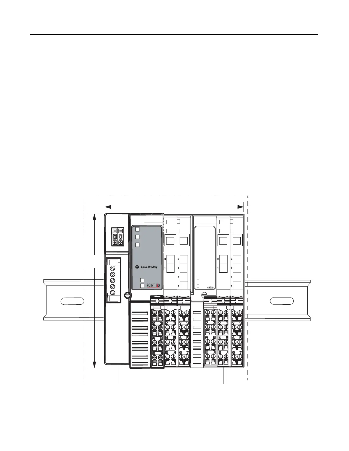
POINT I/O Module with a
1734-ADN, 1734-ACNR,
1734-AENT, or 1734-APB
Adapter
See the figure for mounting dimensions for a POINT I/O module with a
network adapter. The example figure shows a 1734-ADN adapter.
1734-EP24DC or 1734-FPD (HxWxL)
76.2 (3.0) x 25.4 (1.0) x 133.4 (5.25)
1734-EP24DC or 1734-FPD (HxWxL)
76.2 (3.0) x 54.9 (2.16) x 133.4 (5.25)
1734-TB or 1734-TBS with I/O (HxWxL)
76.2 (3.0) x 12.0 (0.47) x 133.4 (5.25)
Secure DIN rail to mounting surface approximately every 200 mm (7.8 in.).
Adapter
Status
DeviceNet
Status
PointBus
Status
1734-ADN
Field
Power
System
Power
L = 2.16 + [# of I/O x 0.47] + [# of EP24DC or FPD x 1.0] in.
Allow a 25.4 (1.0)
air gap all around
133.4
(5.25)
mm (in)
L = 54.9 + [# of I/O x 12.0] + [# of EP24DC or FPD x 25.4] mm

Table of Contents

Related product manuals