EasyManua.ls Logo

Allen-Bradley 1756-OB16IEFS - 1756-Oc8

Allen-Bradley 1756-OB16IEFS
258 pages
To Next Page IconTo Next Page
To Next Page IconTo Next Page
To Previous Page IconTo Previous Page
To Previous Page IconTo Previous Page
Loading...
168 Rockwell Automation Publication 1756-UM058G-EN-P - November 2012
Chapter 8 Wiring Diagrams
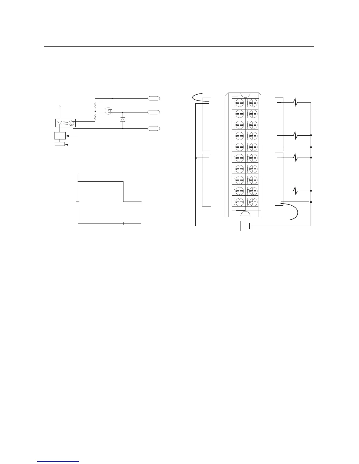
1756-OC8
ControlLogix DC (30...60V) output module
12
34
5
6
7
8
910
11
12
1314
1516
1718
19
20
+
Group 0
Group 1
Daisy Chain to Other RTBs
Daisy Chain to
Other RTBs
1756-OC8
Group 0
Group 1
DC-0 (+)
DC-0 (+)
DC-0 (+)
DC-0 (+)
DC-1(+)
DC-1(+)
DC-1(+)
DC-1(+)
RTN OUT-0
RTN OUT-1
OUT-0
OUT-1
OUT-2
OUT-3
OUT-4
OUT-5
OUT-6
OUT-7
RTN OUT-0
RTN OUT-1
DC COM
Continuous @
60 °C (140 °F)
+5V
RTN OUT-0
OUT-0
DC-0(+)
ControlLogix Backplane Interface
Display
Surge Current Chart
Simplified Schematic
Surge
Current
Time
010 ms
2 A
4 A

Table of Contents

Other manuals for Allen-Bradley 1756-OB16IEFS

Related product manuals