EasyManua.ls Logo

Allen-Bradley 1756-OB16IS - 1756-Ia32

Allen-Bradley 1756-OB16IS
258 pages
To Next Page IconTo Next Page
To Next Page IconTo Next Page
To Previous Page IconTo Previous Page
To Previous Page IconTo Previous Page
Loading...
Rockwell Automation Publication 1756-UM058G-EN-P - November 2012 141
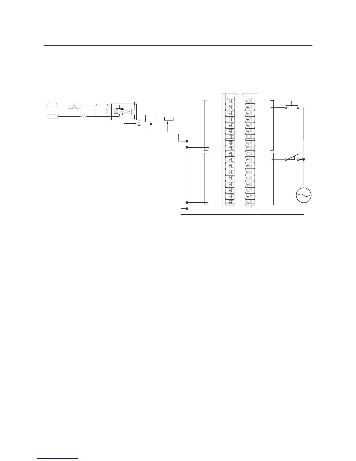
Wiring Diagrams Chapter 8
1756-IA32
ControlLogix AC (74...132V) input module
12
34
56
78
910
1112
1314
1516
1718
1920
2122
2324
2526
2728
2930
3132
3334
3536
IN-0
IN-2
IN-4
IN-6
IN-8
IN-10
IN-12
IN-14
IN-16
IN-18
IN-20
IN-22
IN-24
IN-26
IN-28
IN-30
L2-1
L2-0
IN-1
IN-3
IN-5
IN-7
IN-9
IN-11
IN-13
IN-15
L2-0
IN-17
IN-19
IN-21
IN-23
IN-25
IN-27
IN-29
IN-31
L2-1
L1
L2
Daisy Chain
to Other RTBs
1 puorG1 puorG
0 puorG0 puorG
1756-IA32
Simplified Schematic
ControlLogix
Backplane
Interface
Display
+5V
L2-0
IN-O
GND

Table of Contents

Other manuals for Allen-Bradley 1756-OB16IS

Related product manuals