EasyManua.ls Logo

Allen-Bradley 1756-OB16IS - 1756-Ib16 D

Allen-Bradley 1756-OB16IS
258 pages
To Next Page IconTo Next Page
To Next Page IconTo Next Page
To Previous Page IconTo Previous Page
To Previous Page IconTo Previous Page
Loading...
Rockwell Automation Publication 1756-UM058G-EN-P - November 2012 143
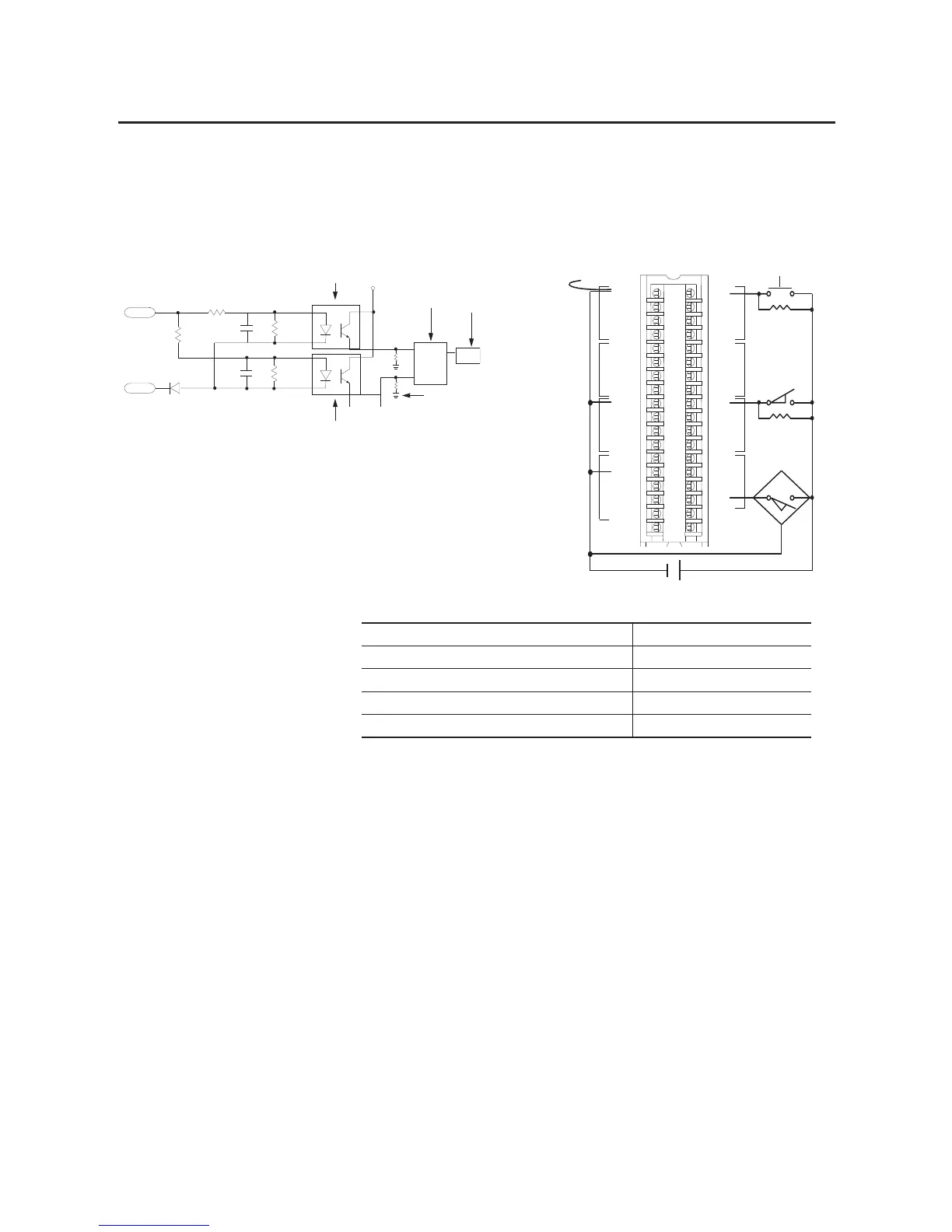
Wiring Diagrams Chapter 8
1756-IB16D
ControlLogix DC (10...30V) diagnostic input module
12
34
56
78
910
1112
1314
1516
1718
1920
2122
2324
2526
2728
2930
3132
3334
3536
+
Leakage Resistor
Leakage Resistor
Daisy Chain to Other RTBs
Group 0
Group 1
1756-IB16D
Group 2
Group 3
Group
Group
Group
Group
IN-0
IN-1
IN-2
IN-3
IN-8
IN-4
IN-5
IN-6
IN-7
Not Used
IN-9
IN-10
IN-11
IN-12
IN-13
IN-14
IN-15
Not Used
GND-0
GND-0
GND-0
GND-0
GND-2
GND-1
GND-1
GND-1
GND-1
Not Used
GND-2
GND-2
GND-2
GND-3
GND-3
GND-3
GND-3
GND-3
DC COM
ControlLogix
Backplane
Interface
Simplified Schematic
Display
GND
Open Wire
GND-0
IN-0
Input
+5V
Recommended Leakage Resistor Size 1/4 W, 5% Supply Voltage
3.9K 10V DC
5.6K 12V DC
15K 24V DC
20K 30V DC

Table of Contents

Other manuals for Allen-Bradley 1756-OB16IS

Related product manuals