EasyManua.ls Logo

Alliance Laundry Systems HTT45N - Electrical Connection Locations - T30 and T45 Series

Alliance Laundry Systems HTT45N
136 pages
Print Icon
To Next Page IconTo Next Page
To Next Page IconTo Next Page
To Previous Page IconTo Previous Page
To Previous Page IconTo Previous Page
Loading...
Specifications and Dimensions
34
©
Copyright, Alliance Laundry Systems LLC - DO NOT COPY or TRANSMIT Part No. 70458301ENR7
Electrical Service
Gas and Steam Models Electric Models
Models
A B C D
055 Series 65.187 in.
(1,655.75 mm)
1.765 in. (44.83 mm) 32.526 in.
(826.16 mm)
6.547 in. (166.3 mm)
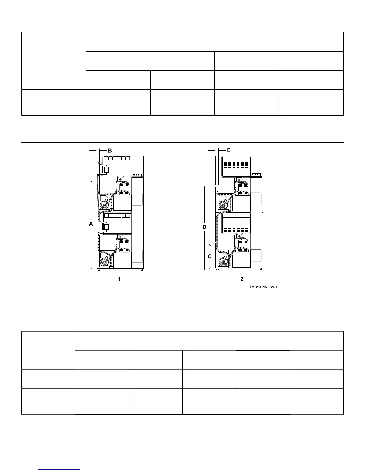
Electrical Connection Locations – T30 and T45 Series
TMB1971N
1
Gas and Steam
2
Electric
Electric Service
Models Gas and Steam Models Electric Models
A B C D E
T30 Series 59 in. (1,498 mm) 1.75 in. (44 mm) 35.63 in.
(905 mm)
73.21 in.
(1,859 mm)
2.28 in. (58 mm)

Table of Contents

Other manuals for Alliance Laundry Systems HTT45N

Related product manuals