EasyManua.ls Logo

Alliance Laundry Systems HTT45N - Steam Connection Locations - T30 Series

Alliance Laundry Systems HTT45N
136 pages
Print Icon
To Next Page IconTo Next Page
To Next Page IconTo Next Page
To Previous Page IconTo Previous Page
To Previous Page IconTo Previous Page
Loading...
Specifications and Dimensions
Part No. 70458301ENR7
©
Copyright, Alliance Laundry Systems LLC - DO NOT COPY or TRANSMIT 37
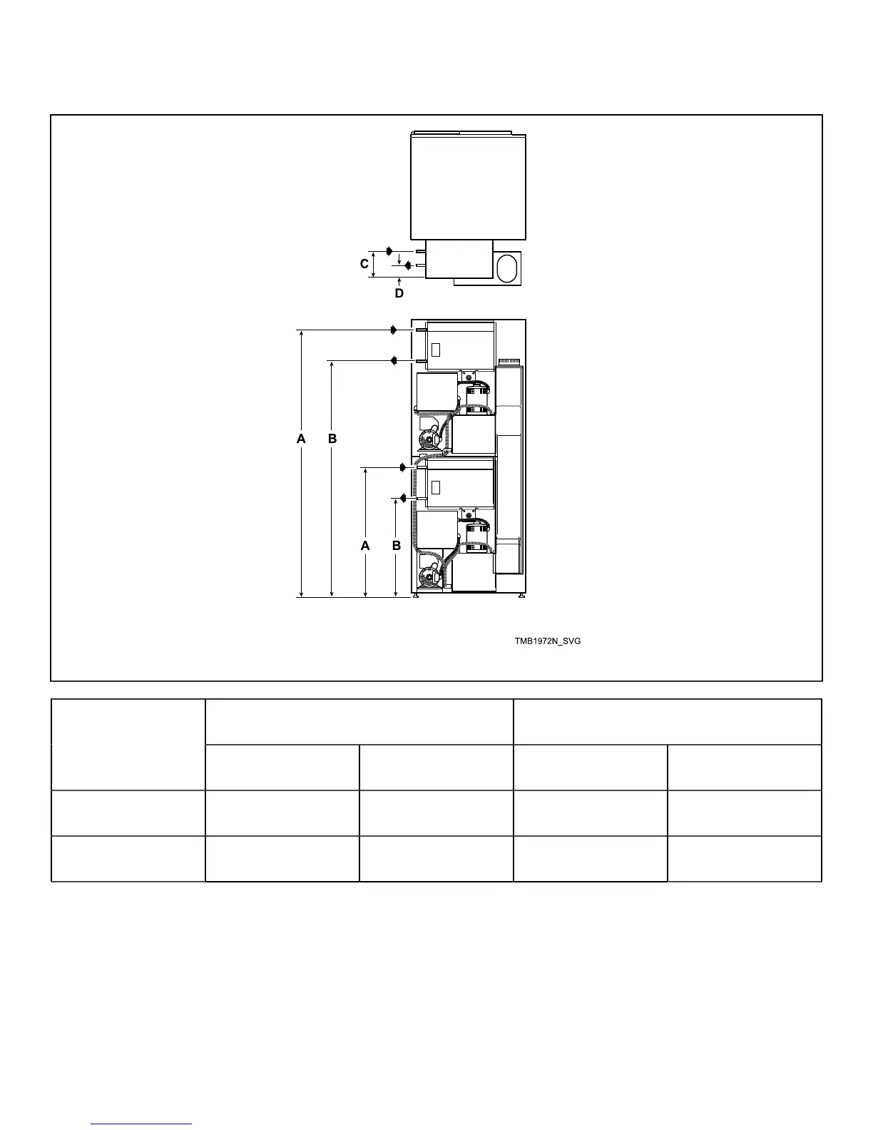
Steam Connection Locations – T30 Series
TMB1972N
Inlet Outlet
Models A C B D
T30 Series (Upper) 73.93 in. (1,877 mm) 6.29 in. (160 mm) 62.71 in. (1,592 mm) 2.39 in. (61 mm)
T30 Series (Lower) 36.35 in. (923 mm) 6.29 in. (160 mm) 25.13 in. (638 mm) 2.39 in. (61 mm)
NOTE: All connections use 3/4 in. NPT pipe.

Table of Contents

Other manuals for Alliance Laundry Systems HTT45N

Related product manuals