EasyManua.ls Logo

Allied 300 - With XCS; BCS Top Frame

Default Icon
66 pages
Print Icon
To Next Page IconTo Next Page
To Next Page IconTo Next Page
To Previous Page IconTo Previous Page
To Previous Page IconTo Previous Page
Loading...
Allied Construction Products, LLC Technical Manual Ho-Pac 300, 300B & 500, 500B
13
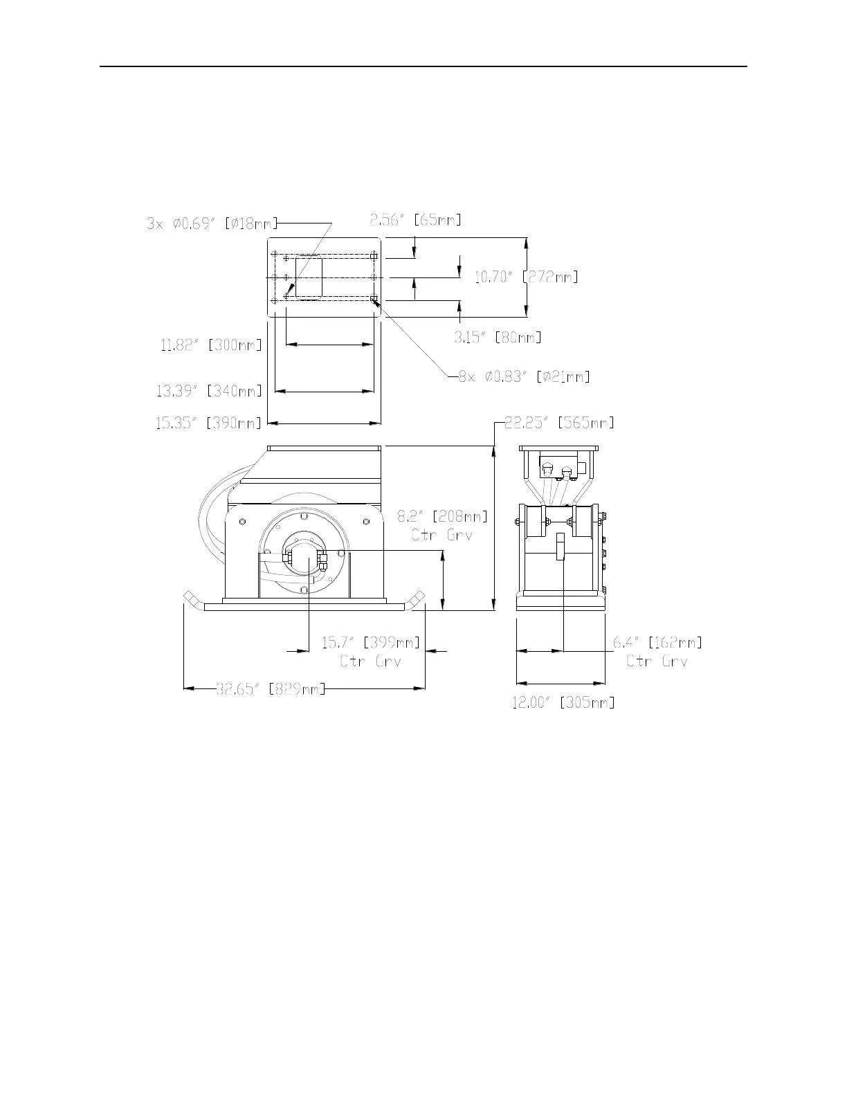
5.2 DIMENSION DIAGRAMS (cont’d)
Fig. 5-4
Model 500 Configured with “XCS” / “BCS” Top Mounting Frame

Table of Contents

Related product manuals