EasyManua.ls Logo

Allied A80US2V - Page 39

Allied A80US2V
49 pages
Print Icon
To Next Page IconTo Next Page
To Next Page IconTo Next Page
To Previous Page IconTo Previous Page
To Previous Page IconTo Previous Page
Loading...
508155-01 Issue 2108 Page 39 of 49
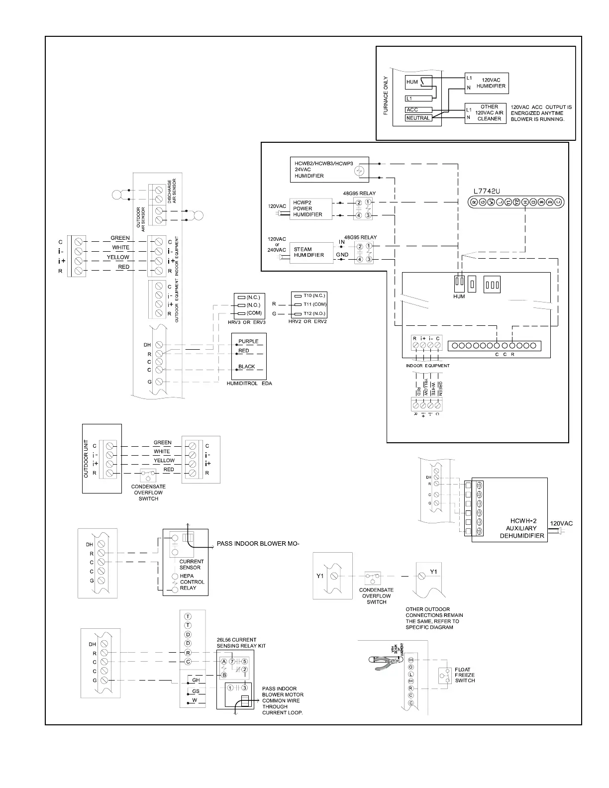
Figure 28. Optional Accessories for Use with Any Comfort Sync System
NOTE: 24V UV LIGHT
APPLICATIONS
RSBus
Rf WGhGsCf
HVAC EQUIP
DEHUMIDIFIER
CONTROL
HVAC
EQUIPMENT
DH
STANDARD 1 OR 2 STAGE
AC OR HP UNIT
*24V IN
JUMPER
CONVENTIONAL NON-
COMMUNICATING
SYSTEM
COMMUNICATING SYSTEM
CS 7000
THERMOSTAT
*24V IN jumper not used in non-
communicating configuration
24V HUMIDIFIER CONNECTIONS
120V CONNECTIONS
HEPA BYPASS FILTER X2680 HEPA INTERLOCK KIT
TOR COMMON WIRE
THROUGH CURRENT LOOP.
SEE HEPA INTERLOCK KIT
FOR INSTALLATION DETAILS
LVCS VENTILATION CONTROL SYSTEM
SEE LVCS VENTILATION
INSTRUCTIONS FOR DAMPER &
SENSOR WIRING
(POWER COMPANY INTERRUPTION SYSTEMS ARE
WIRED SAME AS OVERFLOW SWITCH)
CUT R-DS
W914
DS
R
2 STAGE FURNACE
COMMUNICATING
SYSTEM WIRING
NON-COMMUNICATING
SYSTEM WIRING
“HUM” CONTACT IS
CLOSED ANYTIME
HUMIDITY DEMAND
IS PRESENT
NOTE: COMFORT SYNC WIFI THERMOSTAT SENSE HUMIDITY &
CONTROLS HUM CONTACTS TO CYCLE HUMIDIFIER BASED ON
DEMAND. NO OTHER CONTROL OR HUMIDISTAT REQUIRED.
OPTIONAL OUTDOOR AIR SENSOR FOR USE WITH HUMIDIFIER
(IF NOT ALREADY IN THE SYSTEM FOR OTHER FUNCTIONS.
BUILT INTO ALL COMFORT SYNC OUTDOOR UNITS).
COMFORT
SYNC
ENABLED
FURNACE
COMFORT SYNC
WIFI THERMOSTAT
Discharge Air
Sensor
(Required for
even heat)
Maximum total
length of all
connections on the
RSBus is limited to
1500ft.
Wire gauge of
RSBus wire is 18.
COMFORT SYNC-
ENABLED FURNACE
COMFORT SYNC-ENABLED
OUTDOOR AIR
CONDITIONING OR HEAT
PUMP UNIT
COMFORT SYNC-
ENABLED FURNACE
COMFORT SYNC-
ENABLED FURNACE
In a Comfort Sync system,
neither furnace nor air handler
transformer will have adequate
VA to power 24V UV light
applications. An additional
transformer for UV light
applications is required.
COMFORT SYNC
THERMOSTAT
COMFORT SYNC
ENABLED FURNACE

Related product manuals