EasyManua.ls Logo

Allied A95UH1E - DIRECT VENT CONCENTRIC ROOFTOP TERMINATION; Direct Vent Application Using Existing Chimney; Details of Exhaust Piping Terminations for Non-Direct Vent Applications

Allied A95UH1E
59 pages
Print Icon
To Next Page IconTo Next Page
To Next Page IconTo Next Page
To Previous Page IconTo Previous Page
To Previous Page IconTo Previous Page
Loading...
507276-03 Page 33 of 59Issue 1621
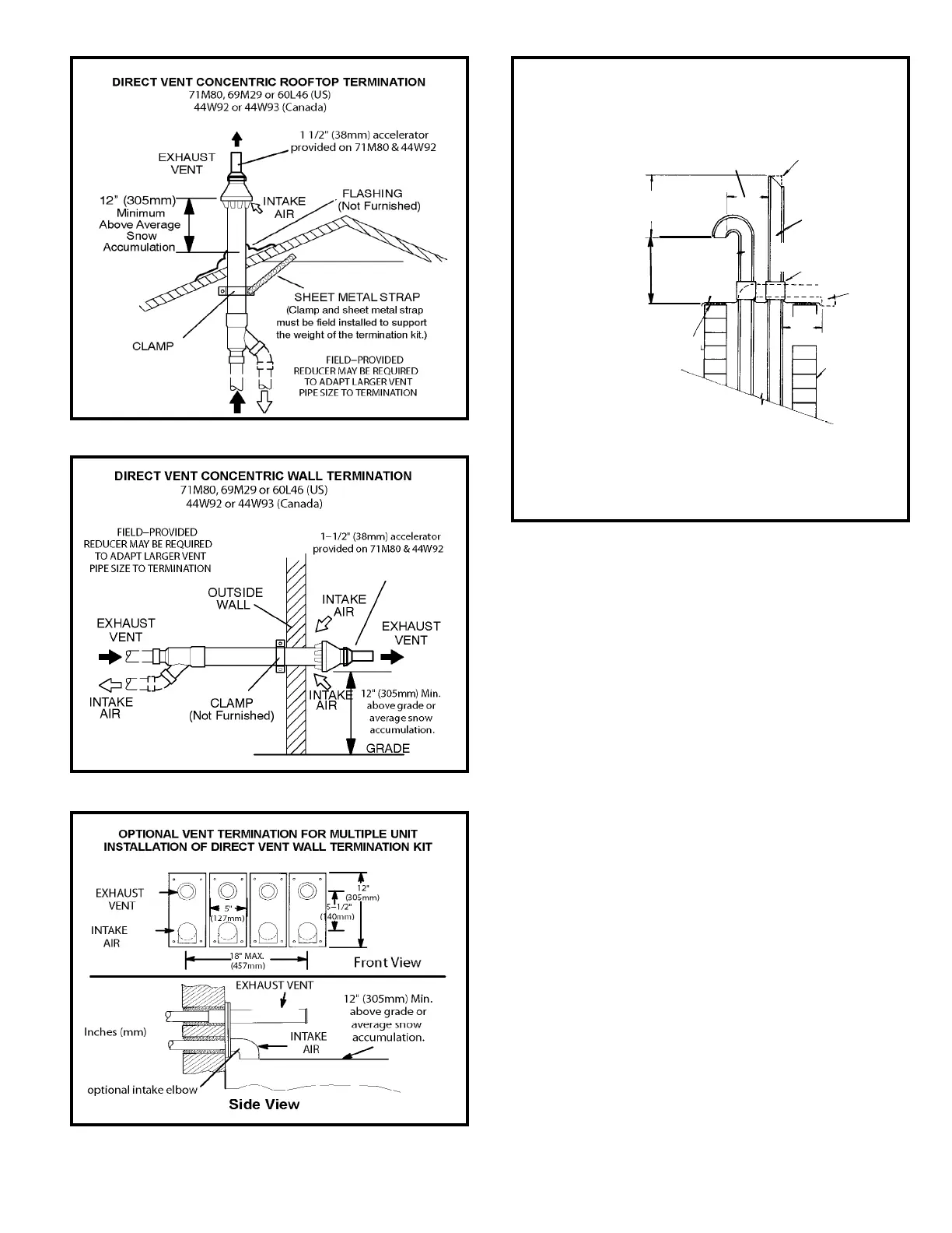
Details of Exhaust Piping Terminations for Non-Direct
Vent Applications
Exhaust pipes may be routed either horizontally through
an outside wall or vertically through the roof. In attic or
closet installations, vertical termination through the roof is
preferred. Figures 46 through 49 show typical terminations.
1. Exhaust piping must terminate straight out or up as
shown. The termination pipe must be sized as listed
in Table 8. The specied pipe size ensures proper
velocity required to move the exhaust gases away from
the building.
2. On eld supplied terminations for side wall exit, exhaust
piping may extend a maximum of 12 inches (305 mm) for
2” PVC and 20” (508 mm) for 3” (76 mm) PVC beyond
the outside wall. See Figure 47.
Figure 43
Figure 44
Figure 42
Figure 45
Direct Vent Application Using
Existing Chimney
NOTE Do not discharge exhaust gases directly into any chimney or vent stack. If ver-
tical discharge through an existing unused chimney or stack is required, insert piping
inside chimney until the pipe open end is above top of chimney and terminate as illus-
trated. In any exterior portion of chimney, the exhaust vent must be insulated.
3" − 8"
(76mm−
203mm)
STRAIGHT−CUT OR
ANGLE−CUT IN DIRECTION
OF ROOF SLOPE *
EXHAUST VENT
1/2" (13mm)
WEATHERPROOF
INSULATION
SHOULDER OF FITTINGS
PROVIDE SUPPORT
OF PIPE ON TOP PLATE
ALTERNATE
INTAKE PIPE
INTAKE PIPE
INSULATION (optional)
EXTERIOR
PORTION OF
CHIMNEY
INSULATE
TO FORM
SEAL
SHEET
METAL TOP
PLATE
*SIZE TERMINATION
PIPE PER TABLE 8.
Minimum 12" (305mm)
above chimney top
plate or average snow
accumulation
8" − 12"
(203mm − 305mm)
3"−8"
(76mm−203mm)

Other manuals for Allied A95UH1E

Related product manuals