EasyManua.ls Logo

Allied A96US2V - Unit Dimensions and Views; Front View; Side View

Allied A96US2V
80 pages
Print Icon
To Next Page IconTo Next Page
To Next Page IconTo Next Page
To Previous Page IconTo Previous Page
To Previous Page IconTo Previous Page
Loading...
507404-02Page 2 of 80 Issue 1448
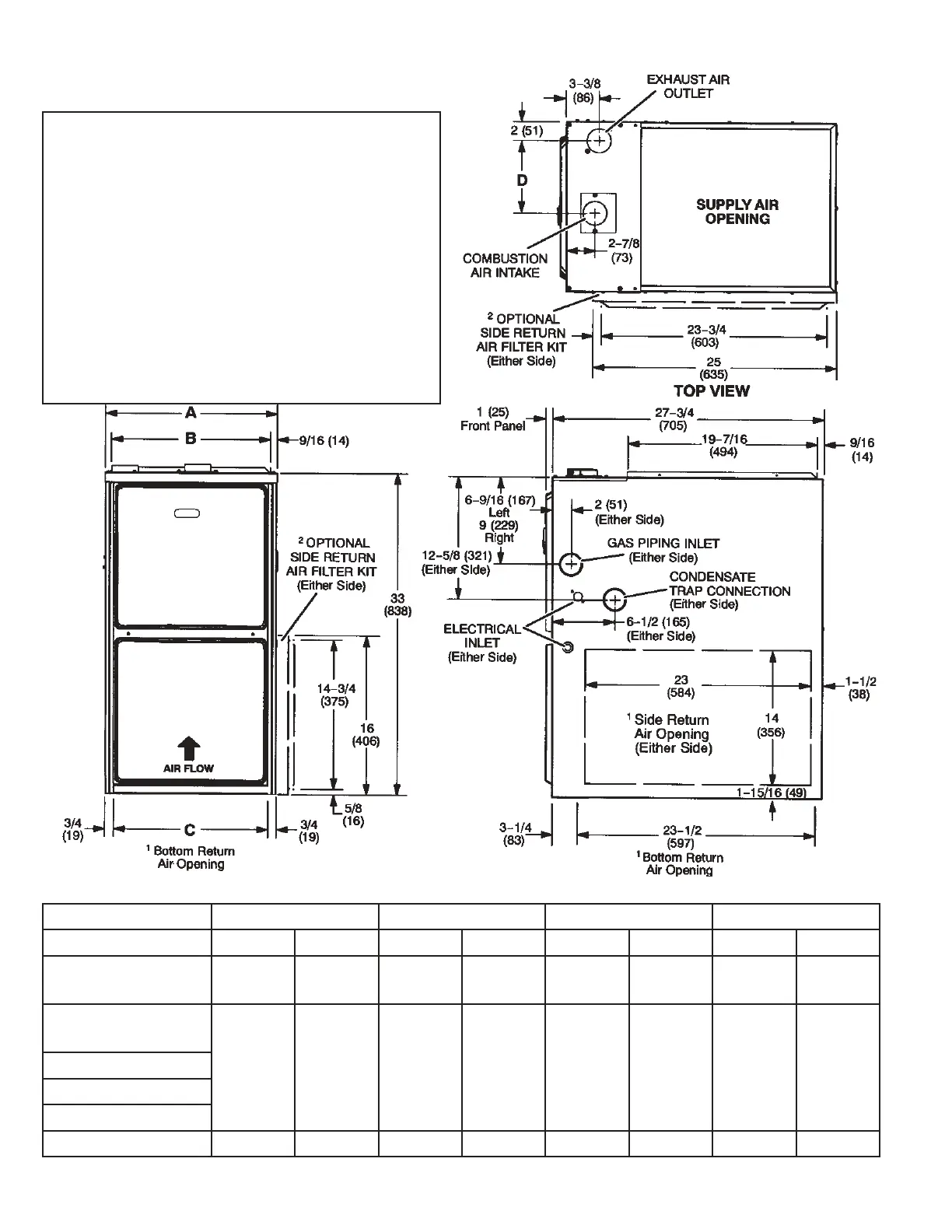
A96UH2V Unit Dimensions - inches (mm)
1 NOTE - 20 C/D (5 Ton) size units installed in upflow
applications that require air volumes of 1800 cfm (850 L/s) or
greater must have one of the following:
1. Single side return air with transition, to accommodate
20 x 25 x 1 in. (508 x 635 x 25 mm) air lter.
2. Single side return air with optional RAB Return Air Base
3. Bottom return air.
4. Return air from both sides.
5. Bottom and one side return air.
2 Optional External Side Return Air Filter kit is not for use with
optional Return Air Base.
* Consider sizing requirements for optional IAQ equipment
before cutting side return opening.
FRONT VIEW SIDE VIEW
Model Number A B C D
A96UH2V in. mm in. mm in. mm in. mm
045-12
070-12
17-1/2 448 16-3/8 416 16 406 7-5/8 194
090-12
090-16
21 533 19-7/8 505 19-1/2 495 9-3/8 238
090-20
110-16
110-20
135-20 24-1/2 622 23-3/8 594 23 584 11-1/8 283

Other manuals for Allied A96US2V

Related product manuals