EasyManua.ls Logo

Alpha-InnoTec SWP430 - Circuit Diagrams; Swp 430 · Swp 270 H

Alpha-InnoTec SWP430
68 pages
Print Icon
To Next Page IconTo Next Page
To Next Page IconTo Next Page
To Previous Page IconTo Previous Page
To Previous Page IconTo Previous Page
Loading...
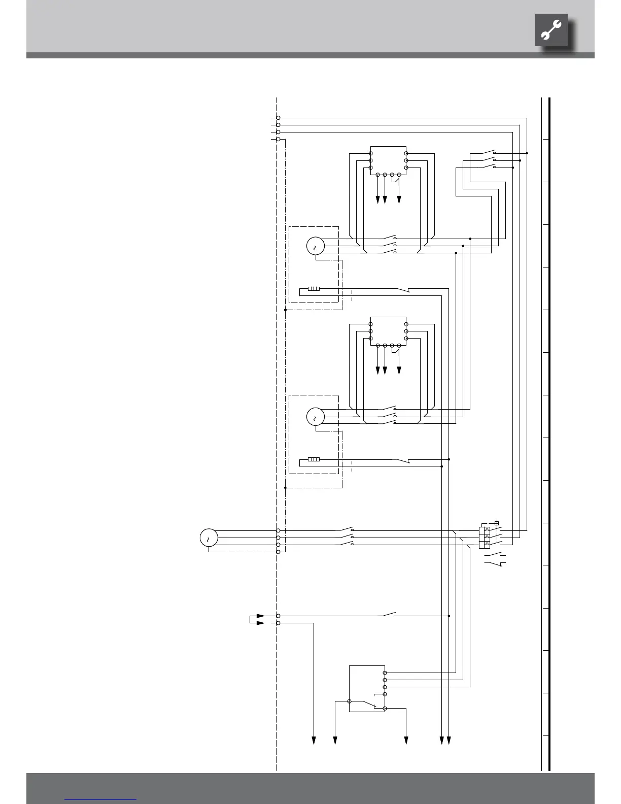
51
L1
-X7
L2 L3 PE
1
2
-K0
/2.3
3
4
A1
23
24
A2
L1 L2 L3
T1 T2 T3
-N1
5
6
VD1
/2.1
K1-A1
/2.1
A2
1
2
-K1
/2.4
3
4
M
3
T1 T2 T3 PE
-M1
VD1
5
6
21
22
-K1
/2.4
-R20
A1
23
24
A2
L1 L2 L3
T1 T2 T3
-N2
VD2
/2.1
K2-A1
/2.1
A2
/2.1
1
2
-K2
/2.5
3
4
M
3
T1 T2 T3 PE
-M2
VD2
5
6
21
22
-K2
/2.5
-R21
1
2
-K3
/2.9
4
-X7
I> I>I>
1 3 5
2 4 6
-F3
3
4
5
M
3
U1 V1 W1 PE
-M3
5
6
6 PE
1314
13
2122
13
14
-F3
11
7
-X7
8
L1 L2 L3 12 14
11
-B1
L Reg
/2.1
N Reg
/2.1
ASD
/2.1
B1-11
/2.1
MOT
/2.1
MOT
1
N1
Starting current limit compressor 2N2
MOT
M3
X7
B1
3~PE/400V/50Hz
UK817328
3~PE/400V/50Hz
Sump heating for compressor 1
Phase sequence relay; if phase sequence in the order of 11 + 14 is closed
2
2
M1
R20
BOSUP
Bypass contactor compressor 2
Starting current limit compressor 1
1
Power supply compressor; right-hand rot. field is mandatory!
Terminal strip in switchbox of heat pump; N/PE distribution for external 230V units
Compressor 1
M2
Motor protection switch, well / brine pump
Contactor, well / brine pump
K2
Well / brine pump provided by customer
R21
Connection of external motor protection; bridge if no external motor protection can be connected.
X7:7,8
VD2 Compressor 2
Sump heating for compressor 2
Mains contactor, condenser
VD1
K3
Bypass contactor compressor 1VD1
K0
Function
Legend:
VD2
Operating materials
K1
F3
SWP 270H / 430 WWP 550X
817328
Achim Pfleger 10.08.2009
- ÄM 033/2009
1 2 3 4 5 6 7 8 9 10 11 12 13 14 15 16
1 2 3 4 5 6 7 8 9 10 11 12 13 14 15 16
1/3
1
17.08.2009
Achim Pfleger
10X489; 10X488; 10X490;
Blatt-Nr.
Zustand
Änderung
Bearb.
Datum
Name
Bl von Anz
Datum
We reserve the right to make technical changes.
UK830509/200114 © Alpha-InnoTec GmbH
SWP 430 · SWP 270HCircuit Diagram 1/3

Table of Contents

Related product manuals