EasyManua.ls Logo

Alpha-InnoTec SWP430 - Swp 540 - Swp 820 · Swp 330 H - Swp 500 H

Alpha-InnoTec SWP430
68 pages
Print Icon
To Next Page IconTo Next Page
To Next Page IconTo Next Page
To Previous Page IconTo Previous Page
To Previous Page IconTo Previous Page
Loading...
54
L1
-X7
L2 L3 PE
1
2
-K0
/2.3
3
4
A1
23
24
A2
L1 L2 L3
T1 T2 T3
-N1
5
6
VD1
/2.1
K1-A1
/2.1
A2
1
2
-K1
/2.4
3
4
1 3 5
2 4 6
-F4
M
3
T1 T2 T3 PE
-M1
VD1
5
6
9596
13
9798
21
22
-K1
/2.4
-R20
A1
23
24
A2
L1 L2 L3
T1 T2 T3
-N2
VD2
/2.1
K2-A1
/2.1
A2
/2.1
1
2
-K2
/2.5
3
4
1 3 5
2 4 6
-F5
M
3
T1 T2 T3 PE
-M2
VD2
5
6
9596
13
9798
21
22
-K2
/2.5
-R21
1
2
-K3
/2.9
4
-X7
I> I>I>
1 3 5
2 4 6
-F3
3
4
5
M
3
U1 V1 W1 PE
-M3
5
6
6 PE
1314
13
2122
13
14
-F3
11
95
96
-F4
4
95
96
-F5
8
7
-X7
8
L1 L2 L3 12 14
11
-B1
L Reg
/2.1
N Reg
/2.1
ASD
/2.1
B1-11
/2.1
MOT
/2.1
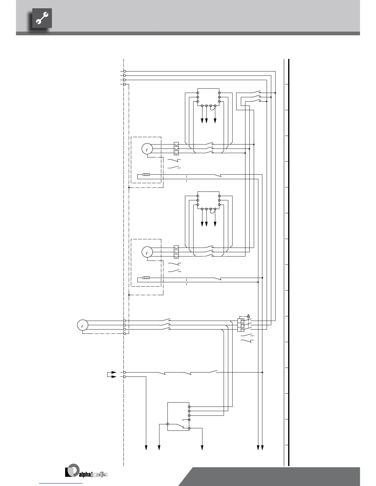
X7:7,8 Connection of external motor protection; bridge if no external motor protection can be connected.
R21
Sump heating for compressor 2
Compressor 2VD2
Motor protection switch, well / brine pump
M2
Compressor 1
Well / brine pump provided by customer
K2
Contactor, well / brine pump
VD2
Legend:
Function
F3
K1
Operating materials
K3
VD1
Mains contactor, condenserK0
VD1 Bypass contactor compressor 1
B1
X7
M3
3~PE/400V/50Hz
UK817329
3~PE/400V/50Hz
Overload relay for compressor 1
N1
F4
1
MOT
MOT
F5
N2
Starting current limit compressor 2
Starting current limit compressor 1
Bypass contactor compressor 2
BOSUP
Terminal strip in switchbox of heat pump; N/PE distribution for external 230V units
Power supply compressor; right-hand rot. field is mandatory!
1
2
Phase sequence relay; if phase sequence in the order of 11 + 14 is closed
Sump heating for compressor 1
Overload relay for compressor 2
R20
M1
2
SWP 330H-500H 540-820 WWP 700X-1100X
817329
Achim Pfleger 10.08.2009
- ÄM 033/2009
1 2 3 4 5 6 7 8 9 10 11 12 13 14 15 16
1 2 3 4 5 6 7 8 9 10 11 12 13 14 15 16
1/3
1
17.08.2009
10X369; 10X370; 10X371;
Achim Pfleger
10X365; 10X366; 10X367; 10X361; 10X362; 10X363;
Blatt-Nr.
Zustand
Änderung
Bearb.
Datum
Name
Bl von Anz
Datum
We reserve the right to make technical changes.
UK830509/200114 © Alpha-InnoTec GmbH
SWP 540 – SWP 820 · SWP 330H – SWP 500H Circuit Diagram 1/3

Table of Contents

Related product manuals