EasyManua.ls Logo

Altivar Process ATV630 - Page 29

Altivar Process ATV630
95 pages
Print Icon
To Next Page IconTo Next Page
To Next Page IconTo Next Page
To Previous Page IconTo Previous Page
To Previous Page IconTo Previous Page
Loading...
EAV64301 01/2015 29
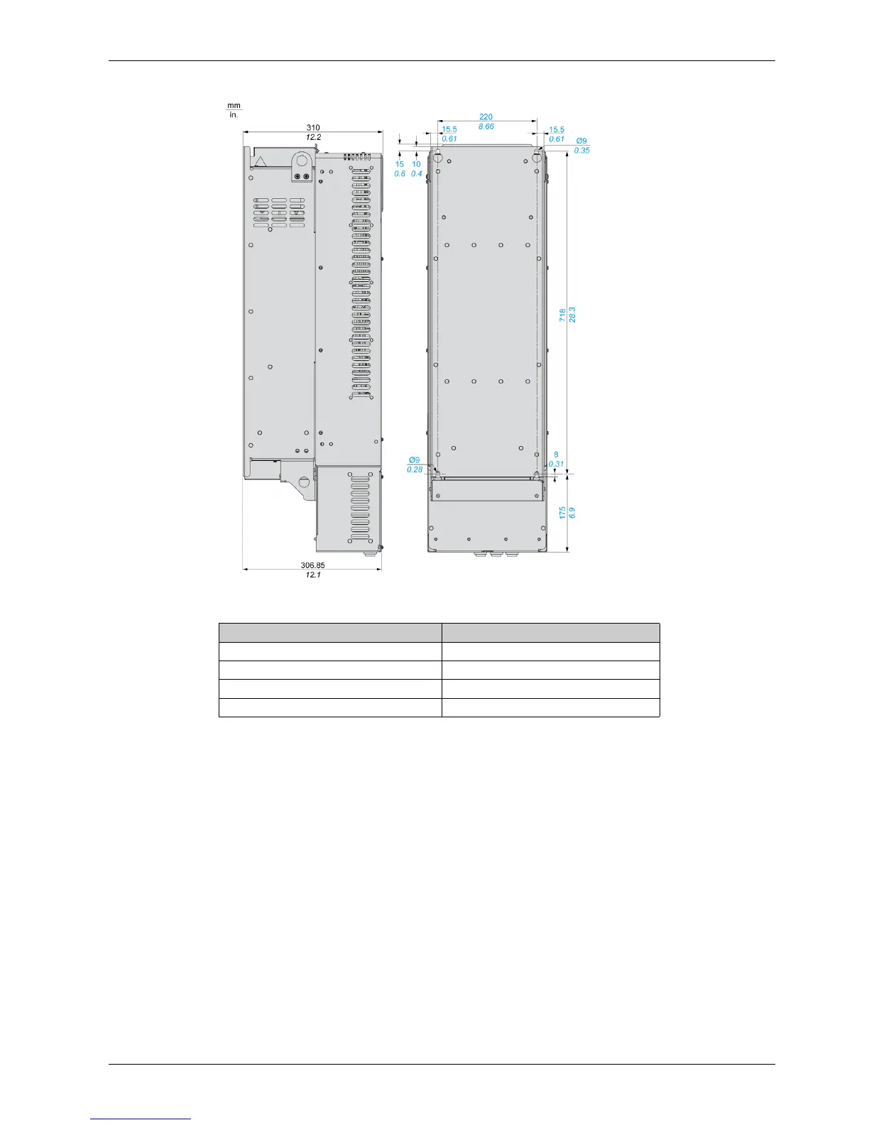
Drives without IP21 top cover - Side and Rear View
Weights
Catalog Number Weight in kg (lb)
ATV630D30M3...D45M3 56.6 (124.8)
ATV630D55N4 56.5 (124.6)
ATV630D75N4 58 (127.9)
ATV630D90N4 58.5 (129)

Other manuals for Altivar Process ATV630

Related product manuals