EasyManua.ls Logo

Ametek Sorensen XG 600-1.4 - Figure D-9 Mounting Cabinet Section into Rack

Ametek Sorensen XG 600-1.4
399 pages
To Next Page IconTo Next Page
To Next Page IconTo Next Page
To Previous Page IconTo Previous Page
To Previous Page IconTo Previous Page
Loading...
APPENDIX D
Rack Mount Options and Installation Instructions
D-10 M370430-01 Rev F
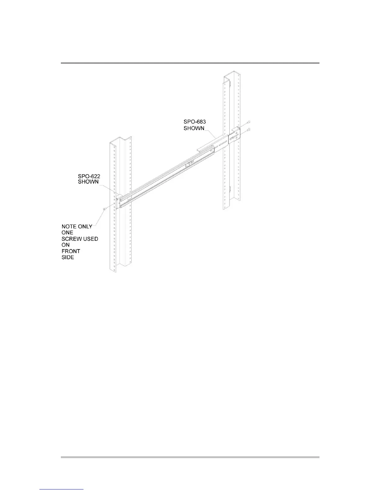
Figure D-9 Mounting Cabinet Section Into Rack
7. Install chassis.
8. Cycle chassis twice (push in and out two times).
Ensure that rollers are engaged and the lock functions properly.
9. Remove chassis and securely tighten hardware from step 4. See Figure D-10.

Table of Contents

Related product manuals