EasyManua.ls Logo

Anritsu MP1800A - Page 63

Anritsu MP1800A
272 pages
Print Icon
To Next Page IconTo Next Page
To Next Page IconTo Next Page
To Previous Page IconTo Previous Page
To Previous Page IconTo Previous Page
Loading...
3.2 Inter-Module Connection
3-9
3
Panel Layout and Connectors
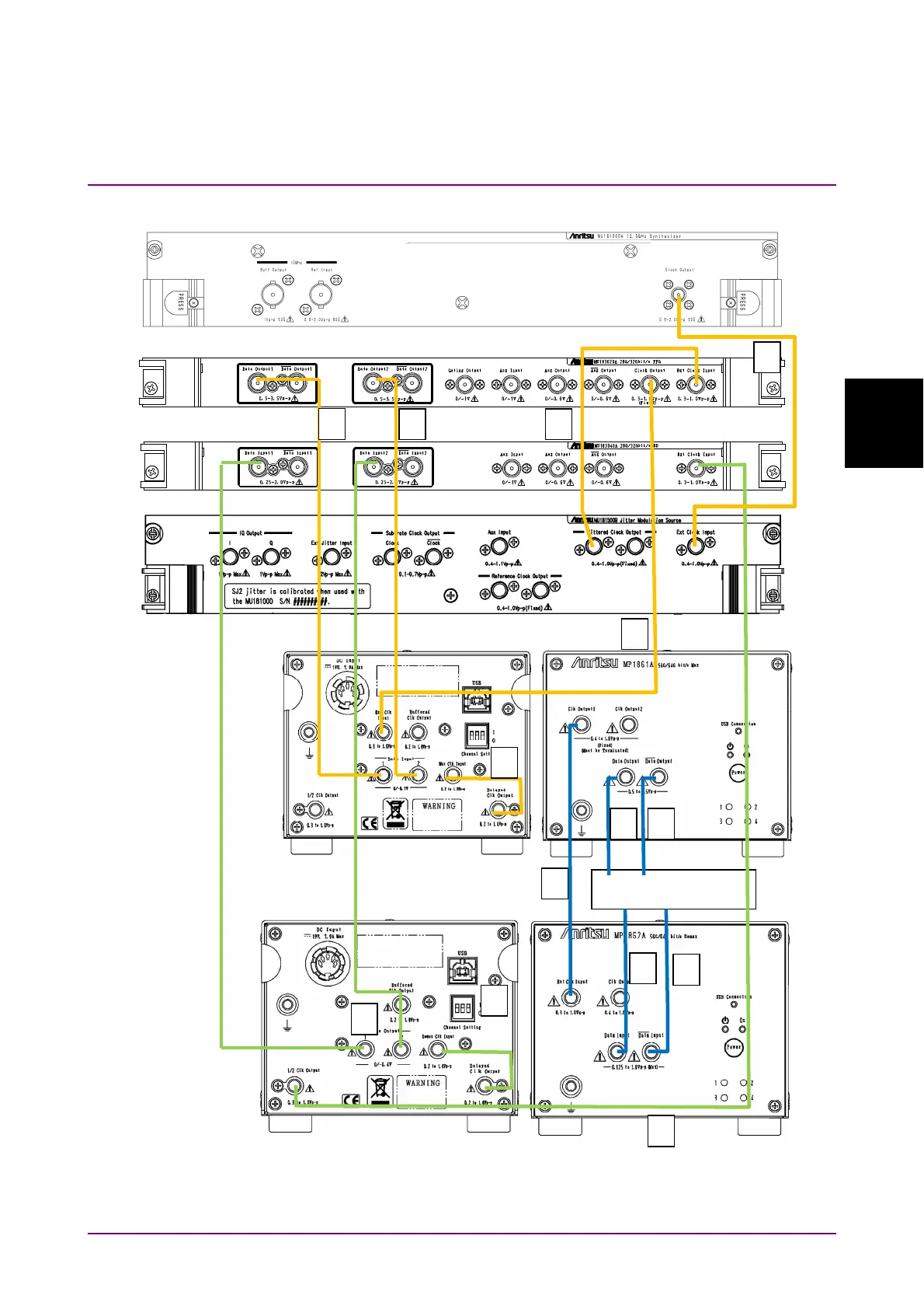
Figure 3.2.1-1 1ch TRx Connection Example
4
5
DUT
7
8
9
10
11
33
6 6
8
2
MU183020A
MU183040B
MU181000
A
MU181500B
1

Table of Contents

Other manuals for Anritsu MP1800A

Related product manuals