EasyManua.ls Logo

Apollo MX20 - Custom Map (MAP) Function

Default Icon
78 pages
Print Icon
To Next Page IconTo Next Page
To Next Page IconTo Next Page
To Previous Page IconTo Previous Page
To Previous Page IconTo Previous Page
Loading...
Installation
Apollo MX20 Installation Manual
9
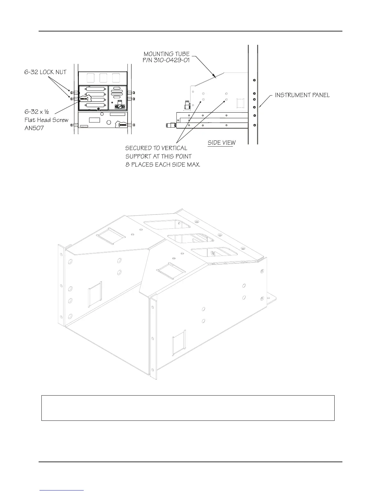
Figure 6 - Sample GX60 & MX20 Mounting
Figure 7 - Alternate MX20 Mounting Configuration
NOTE
This configuration utilizes an angle bracket along each side of the mounting tube. The installer must
consider the structural integrity of the installation as defined in AC43.13.2a Chapter 1.

Table of Contents

Other manuals for Apollo MX20