EasyManua.ls Logo

Apollo MX20 - Minimum System Configuration; Air Circulation; Compass Safe Distance; Viewing Angle

Default Icon
78 pages
Print Icon
To Next Page IconTo Next Page
To Next Page IconTo Next Page
To Previous Page IconTo Previous Page
To Previous Page IconTo Previous Page
Loading...
Installation
Apollo MX20 Installation Manual
11
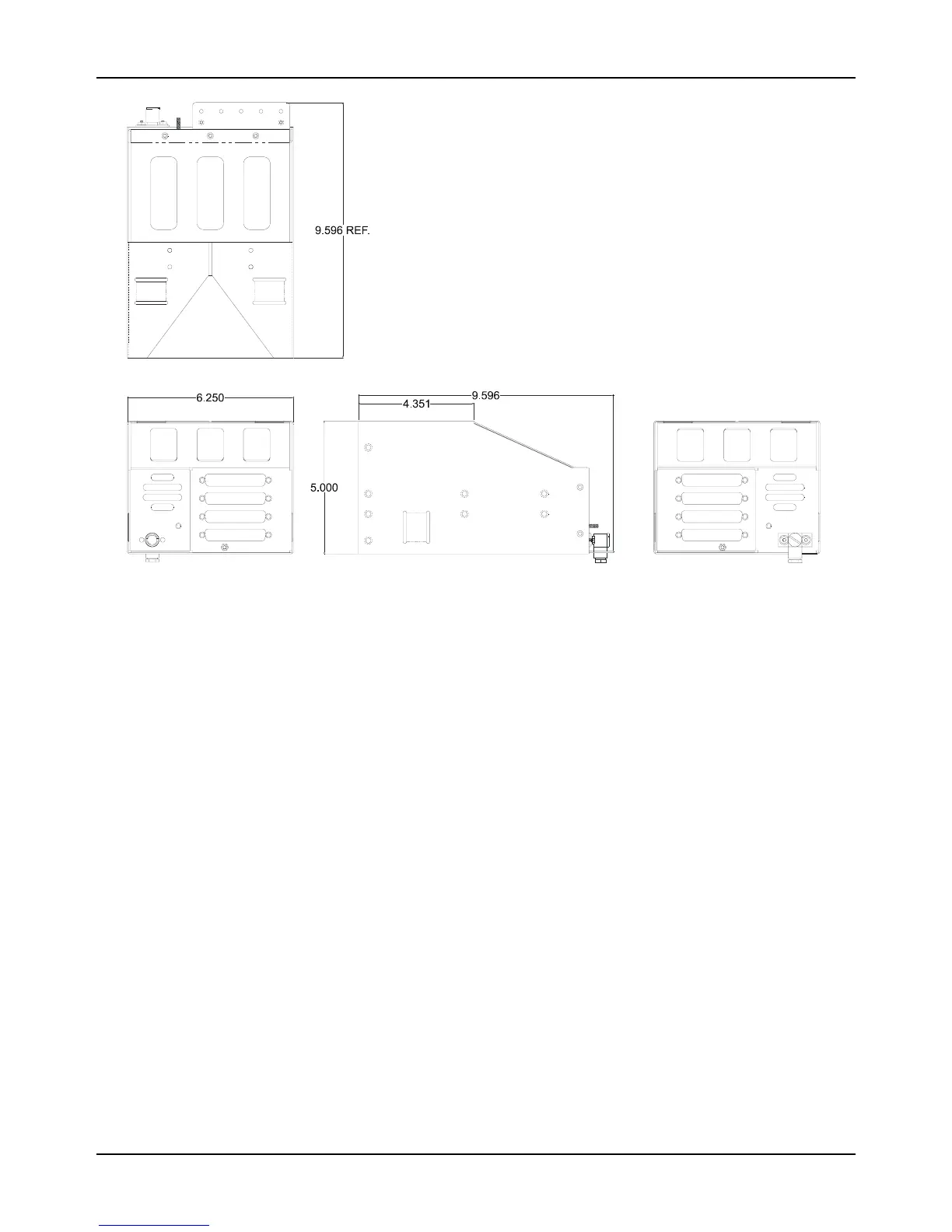
Figure 9 - MX20 Mounting Tube Assembly Dimensions
Note: Use of mounting tube P/N 310-0429-01, or later FAA approved revision, is recommended for all
installations and is required for helicopter installations.
2.3.3 MINIMUM SYSTEM CONFIGURATION
The MX20 requires connections to the following equipment as a minimum, as appropriate for each unit:
Power input
Serial position input device (such as the Apollo GX60, Apollo CNX-series, or equivalent)
Serial altitude encoder
The serial I/O requirements are located in Appendix A of this manual.
2.3.4 AIR CIRCULATION
No external cooling is required for the MX20. Newer units will have an internal fan installed. Previous
units may be modified to include an internal fan, if desired. No special provisions are required during
installation to accommodate the fan except to ensure the fan opening is not blocked.
2.3.5 COMPASS SAFE DISTANCE
After reconfiguring the avionics in the cockpit panel, if the MX20 is mounted less than seven inches from
the compass, recalibrate the compass and make the necessary changes for noting correction data.
2.3.6 VIEWING ANGLE
The MX20 shall be located such that the operator will have easy access to the controls and have adequate
view of the display. The MX20 may be adequately viewed from the primary pilot’s position when the
following minimums are met:
Up: 20 degrees off pilot’s eye center line

Table of Contents

Other manuals for Apollo MX20