EasyManua.ls Logo

Areva WSB - Fan Attachment

Areva WSB
44 pages
Print Icon
To Next Page IconTo Next Page
To Next Page IconTo Next Page
To Previous Page IconTo Previous Page
To Previous Page IconTo Previous Page
Loading...
30
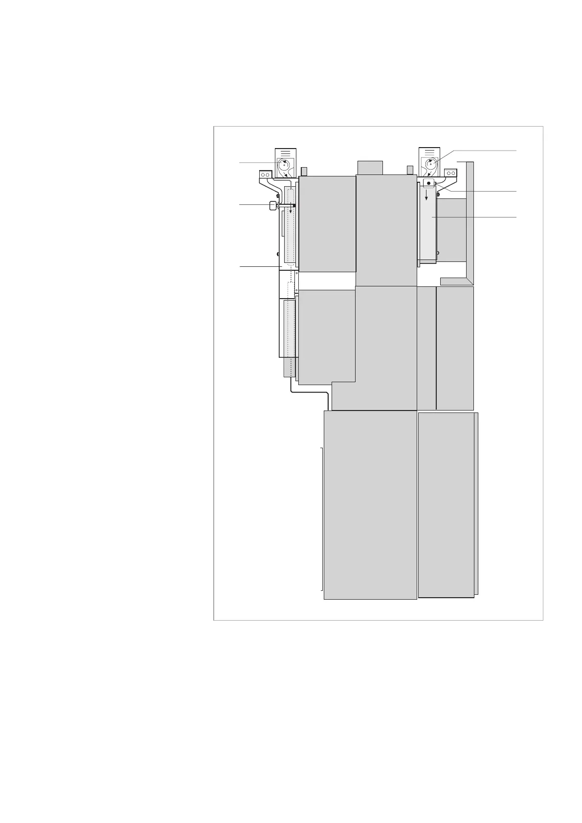
Bus section couplers and bus coup-
lers or incoming feeder panels with a
rated normal current lr = 2500 A are
provided with a fan attachment on
the circuit-breaker tank and the bus-
bar tank.
The system is equipped with cross-
flow fans with guard screen.
Fan operation:
The fan does not turn until the pre-
vailing normal current has exceeded
an adjustable threshold.
Settings for ambient conditions,
see sect. 1.4:
Making threshold: 2,000 A
Breaking threshold: 1,900 A
Air flow monitor:
To ensure the cooling effect requi-
red, the fan can be monitored by an
air flow monitor which is directly
installed in the outlet duct of the fan
(optional).
If there is no air flow due to failure of
the fan, the air flow monitor issues a
signal.
Measures in case of failure
of the fan:
- Reduction of the maximum
operating current to 2,000 A
- Contact the manufacturer’s
Service Center.
1
2
3
1
2
3
Fig. 7.1
Fan attachment
1 Cross-flow fan with guard screen
2 Air flow monitor
3 Ventilation duct
7 Fan attachment
>>

Related product manuals