EasyManua.ls Logo

Armfield FT74P - Commissioning

Default Icon
65 pages
Print Icon
To Next Page IconTo Next Page
To Next Page IconTo Next Page
To Previous Page IconTo Previous Page
To Previous Page IconTo Previous Page
Loading...
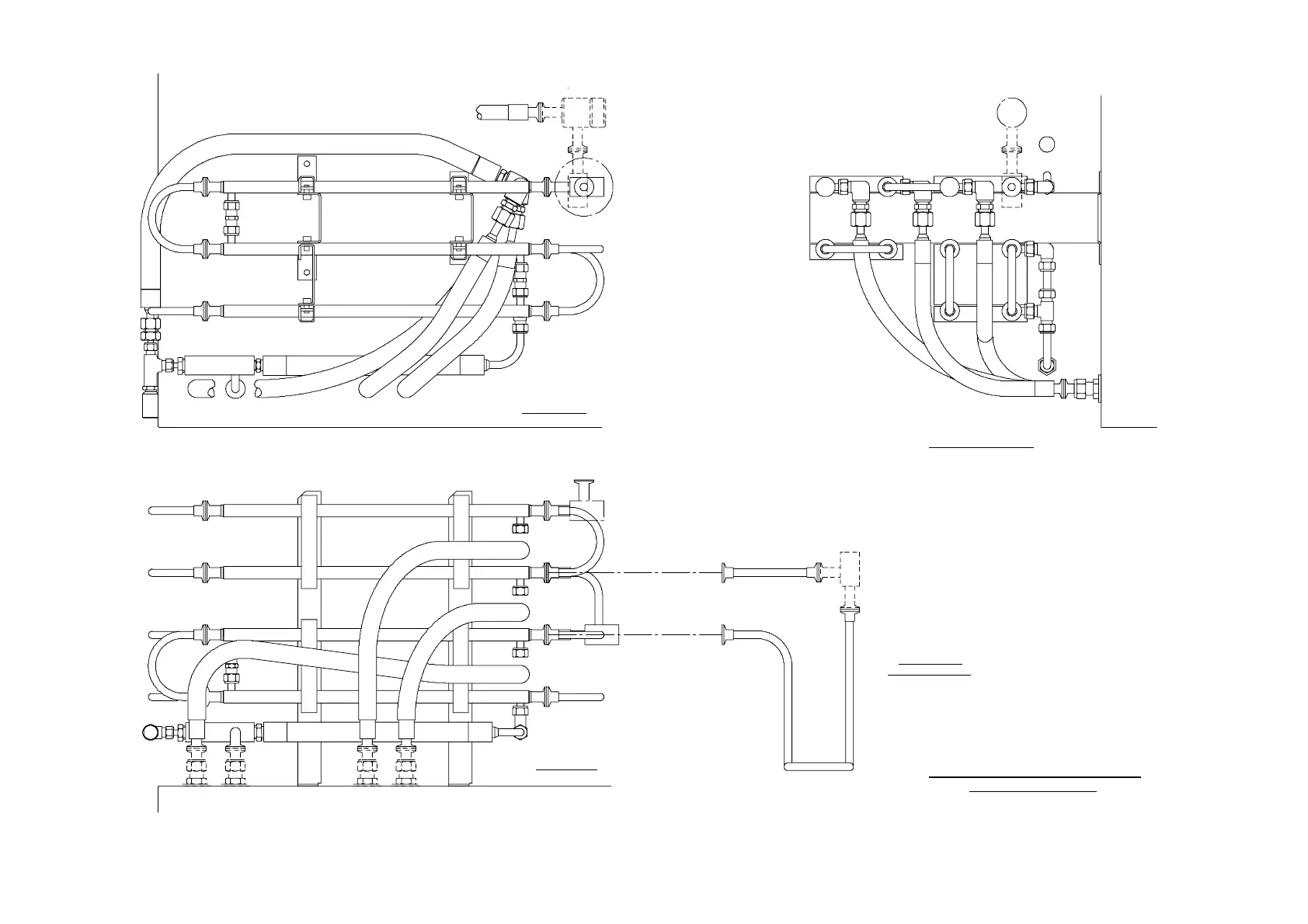
VIEW FROM FRONT
EXISTING PRESSURE
TRANSDUCER HOUSING
EXISTING TEMP.
SENSOR HOUSING
EXISTING PRESSURE
RELIEF VALVE
T.S.
C.W.IN
C.W.OUT
H.W.IN
H.W.OUT
C.W. OUT
C.W. IN
T.S.
PLAN VIEW
SIDE VIEW
15 SECOND
HOLDING TUBE
TUBULAR HEAT EXCHANGER
MODULE FT74-20
27

Related product manuals