EasyManua.ls Logo

Ashley AC2000 - Page 41

Ashley AC2000
48 pages
Print Icon
To Next Page IconTo Next Page
To Next Page IconTo Next Page
To Previous Page IconTo Previous Page
To Previous Page IconTo Previous Page
Loading...
-8-
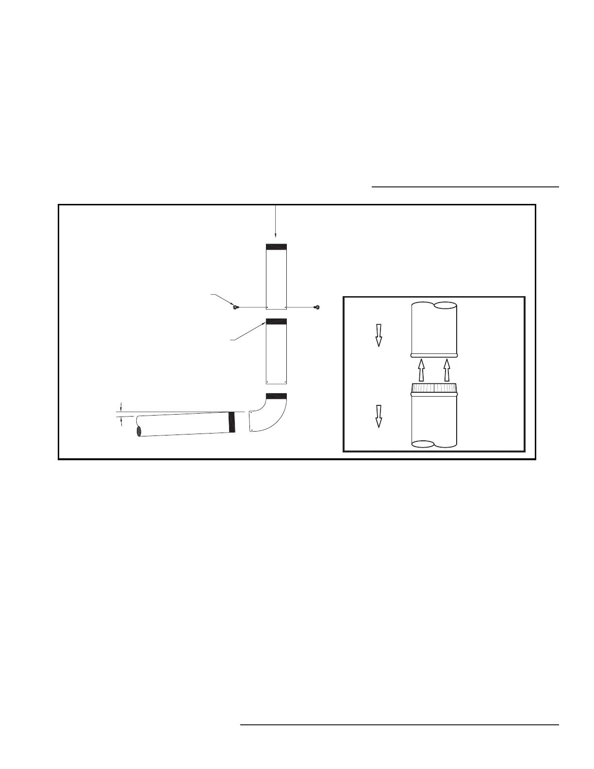
CONDUIT DE RACCORDEMENT DE CHEMINÉE (TUYAU DU POÊLE)
Le conduit de raccordement de la cheminée et la cheminée doivent avoir le même diamètre que la sortie du
poêle (6 po). Si ce n’est pas le cas, nous vous recommandons de communiquer avec le détaillant an de vous
assurer qu’il n’y aura pas de problème de tirage.
Le tuyau du poêle doit être fait d’acier aluminé ou laminé à froid d’une épaisseur minimale de 0,021 po ou
0,53 mm. Il est strictement défendu d’utiliser de l’acier galvanisé.
Le tuyau de fumée doit être assemblé de sorte que la section mâle (extrémité sertie) du tuyau soit orientée vers
le bas. Fixez chaque section à une autre à l’aide de trois vis à métal placées à une distance égale.
Le tuyau doit être court et droit. Toutes les sections installées à l’horizontale doivent avoir une pente d’au moins
¼ po par pied et l’extrémité supérieure de la section doit être vers la cheminée. Les installations horizontales
de tuyaux de cheminée doivent se conformer à la norme NFPA 211. Vous pouvez communiquer avec la NFPA
(National Fire Protection Association) pour demander la plus récente version de la norme 211 de la NPFA.
Pour assurer un bon tirage, la longueur totale du tuyau de raccordement ne doit jamais excéder 2,4 à 3,04 m
(8 à 10 pi). (À l’exception des installations verticales, de style toit cathédrale où le système d’évacuation de la
fumée peut être plus long et raccordé sans problème à la cheminée au niveau du plafond de la pièce.)
L’installation du système d’évacuation de la fumée ne doit pas comporter plus de deux coudes de 90 degrés.
Il est interdit d’installer un « stabilisateur de tirage barométrique » (registre de cheminée) sur un système
d’évacuation de la fumée.
De plus, il n’est pas recommandé d’installer un registre de tirage. En fait, pour un poêle à bois à combustion
contrôlée, le tirage est régulé lors de l’admission de l’air de combustion dans le poêle et non au niveau
de l'échappement.
Pente de ¼ po
par pied
Partie mâle vers le bas
3 vis
Installer
l'extrémité
sertie vers
le poêle.
Direction de
la circulation
des gaz de
conduits
de fumée
IMPORTANCE D’UN TIRAGE ADÉQUAT
Le tirage est une force déplaçant l’air de l’appareil vers la cheminée. La quantité de tirage dans votre
cheminée dépend de la longueur de la cheminée, son emplacement géographique local, les obstructions à
proximité et d’autres facteurs. Trop de tirage peut causer des températures excessives dans l’appareil et pourrait
l’endommager. Un tirage inadéquat peut causer des retours de fumée dans la pièce et causer l’obturation
de la cheminée. Un tirage inadéquat causera des fuites de fumée par l’appareil dans la pièce, s’inltrant par
l’appareil, et les joints du conduit de raccordement. Un brûlage incontrôlable ou une température excessive
indique un tirage excessif.

Related product manuals