EasyManua.ls Logo

Asko DFI746U - Installation; Safety Instructions

Asko DFI746U
53 pages
Print Icon
To Next Page IconTo Next Page
To Next Page IconTo Next Page
To Previous Page IconTo Previous Page
To Previous Page IconTo Previous Page
Loading...
It is important that you read through and follow the instructions and directions below. Conduct
installation and connection in accordance with the separate installation instructions.
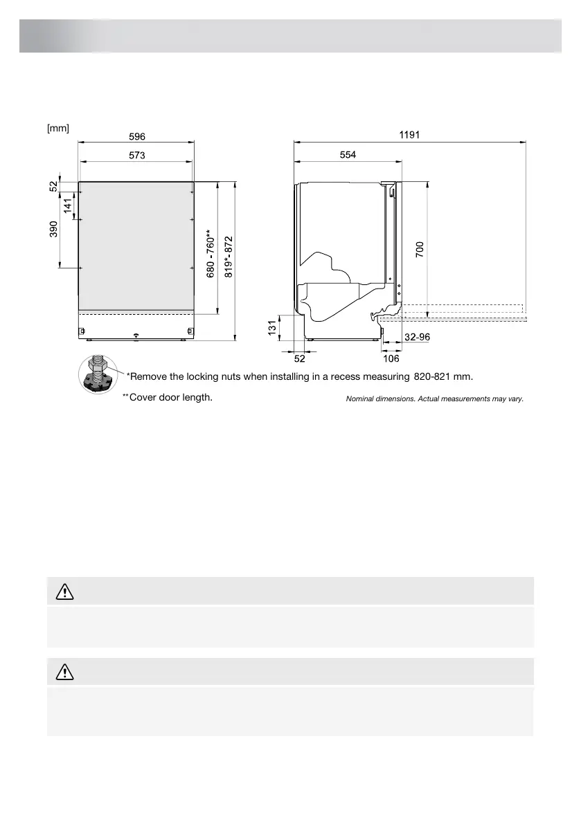
*Remove the locking nuts when installing in a recess measuring 820-821 mm.
Cover door length.
Nominal dimensions. Actual measurements may vary.
[mm]
**
Safety instructions
Connections to electricity, water and drainage must be performed by a qualified professional.
Always follow applicable regulations for water, drainage and electricity.
Take care during installation! Wear protective gloves! There must always be two people!
Place a drip tray on the floor beneath the dishwasher to prevent damage from any water leaks.
Before screwing the dishwasher into place, test the dishwasher by running the Rinse and hold
program. Check that the dishwasher fills with water and drains. Check also that none of the
connections leak.
WARNING!
The ventilation opening in the lower part of the door must not be blocked by a rug, carpet or
similar furnishing.
WARNING!
Turn off the water supply when installing the dishwasher!
The plug must be disconnected or power to the socket turned off while the work is carried out!
48
Installation

Table of Contents

Related product manuals