EasyManua.ls Logo

Asko WM60/2 - Wiring Diagram WM60.3

Asko WM60/2
49 pages
Print Icon
To Next Page IconTo Next Page
To Next Page IconTo Next Page
To Previous Page IconTo Previous Page
To Previous Page IconTo Previous Page
Loading...
Servicemanual WM60
37
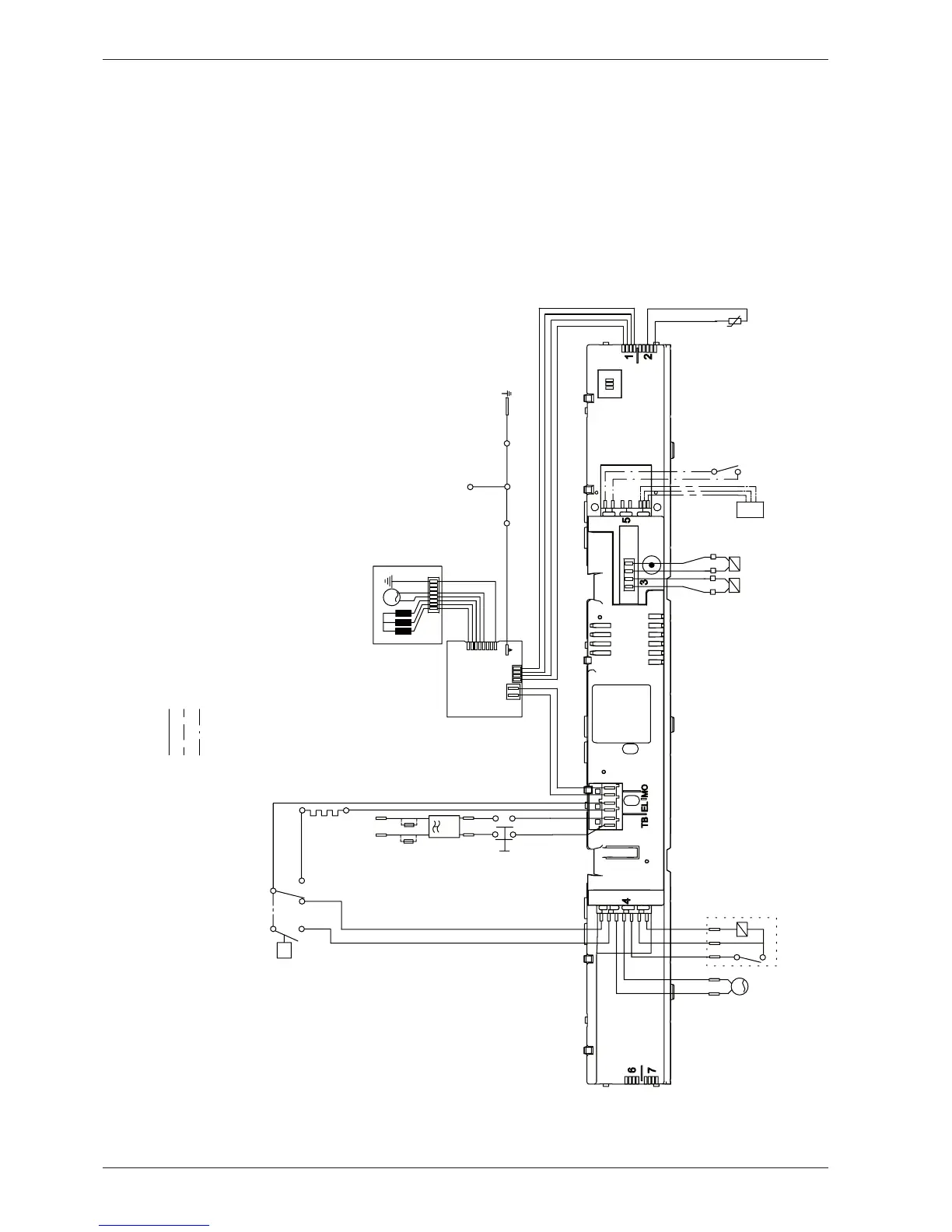
Wiring diagram WM60.3
WIRES IN ALL MACHINES
INTERNAL CONNECTION
WIRES IN SOME MACHINES
IV2
IV1
<P
N14
N12
N16
N11
NTC
FB
EL
AP
LL
3
1
2
F
L
N
INKB
BO
EL
BA
This document must not be copied without
our written pemission, and the contents
thereof must not be imparted to a third party
nor be used for any unauthorized purpose.
Contravention will be prosecuted.
Asko Cylinda AB
CIRCUIT DIAGRAM WM60.3
80 788 69 - 03
6 5
TB
4 3
MCU
MO
TG
RESISTANCES AT ROOM TEMPERATURE (CA. 20°C/68°F)
VALUES WITH +/-10% ARE REGARDED AS NORMAL COMPONENT
F: RADIO INTERFERENCE SUPPRESSION FILTER 680K Ohm
EL: HEATING ELEMENT 25 Ohm
AP: DRAIN PUMP 50 Hz 144 Ohm
AP: DRAIN PUMP 60 Hz 76 Ohm
LL: DOOR LOCK 122 Ohm
NTC: THERMISTOR 6.1 - 3.8 K Ohm
IV 1: INLET VALVE 1 3.7 K Ohm
IV 2: INLET VALVE 2 3.7 K Ohm
MO: MOTOR, 1-3 3,7±7% Ohm
1-2 3,6
±7% Ohm
2-3 3,6
±7% Ohm
MCU: MOTOR CONTROL UNIT
TG: TACHO GENERATOR
N: PRESSURE SWITCH
TB: MAIN SWITCH
FB: FLOAT SWITCH
TS: PRESSURE SENSOR
BA: CONTAINER
INKB: INCOMING GROUND
BO: BOTTOM
TS
TS
*A
*A
*A FUSE CONNECTION USA & CANADA
CABLE POSITIONS
1: MOTOR COMMUNICATION
2: THERMISTOR
3: INLET VALVES
4: DOOR LOCK, DRAIN PUMP, PREASSURE SWITCH
TB: POWER
EL: HEATING ELEMENT, PREASSURE SWITCH
MO: MOTOR POWER

Related product manuals