EasyManua.ls Logo

ASTEC PHOENIX Talon - Burner Mounting; Burner Pilot System; Illustration 4 - Pilot System

ASTEC PHOENIX Talon
31 pages
Print Icon
To Next Page IconTo Next Page
To Next Page IconTo Next Page
To Previous Page IconTo Previous Page
To Previous Page IconTo Previous Page
Loading...
PHOENIX Talon - Operation and Service Manual
12
Burner Mounting
1. The centerline of the Burner should be mounted on the centerline of the drum, at the same pitch as
the drum.
2. Refer to the drawings located in burner junction panel for burner weight and dimensions.
3. For stationary breeching plates (i.e. not Double Barrel Drums) the burner comes with a split mounting
flange that can be bolted onto the drum breeching plate and welded to the burner nose.
4. The mounting flange allows the positioning of the burner at the correct insertion depth past the
breeching plate.
5. The insertion depth should be determined by the ASTEC Engineering Department at the time the
order is placed.
6. Cut out a hole in the breeching plate 2" larger in diameter than the burner nose flange.
7. Check burner blower rotation. Rotation should be clockwise from the motor end.
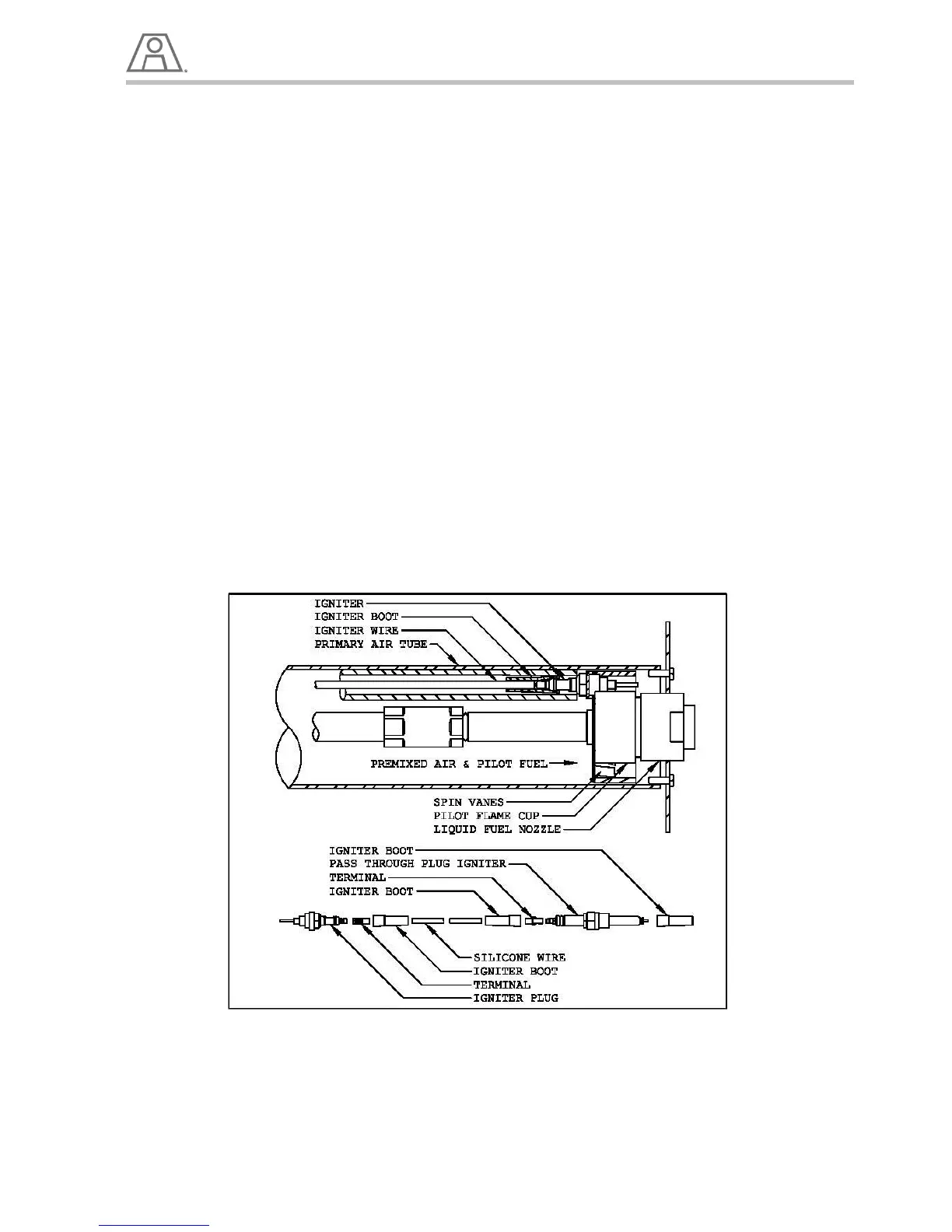
Burner Pilot System
The PHOENIX Talon incorporates a forced-air pilot system. The Pilot and the main flame are monitored
by a single Ultra Violet (UV) flame detector attached to the burner, and is included in the complete burner
package. The air for the pilot is provided from the burner blower, where there is positive air pressure. The
adjustment and operation of the pilot system is detailed below.
Illustration 4 - Pilot System

Table of Contents