EasyManua.ls Logo

Astralpool OPTIMA Series - Page 51

Astralpool OPTIMA Series
56 pages
Print Icon
To Next Page IconTo Next Page
To Next Page IconTo Next Page
To Previous Page IconTo Previous Page
To Previous Page IconTo Previous Page
Loading...
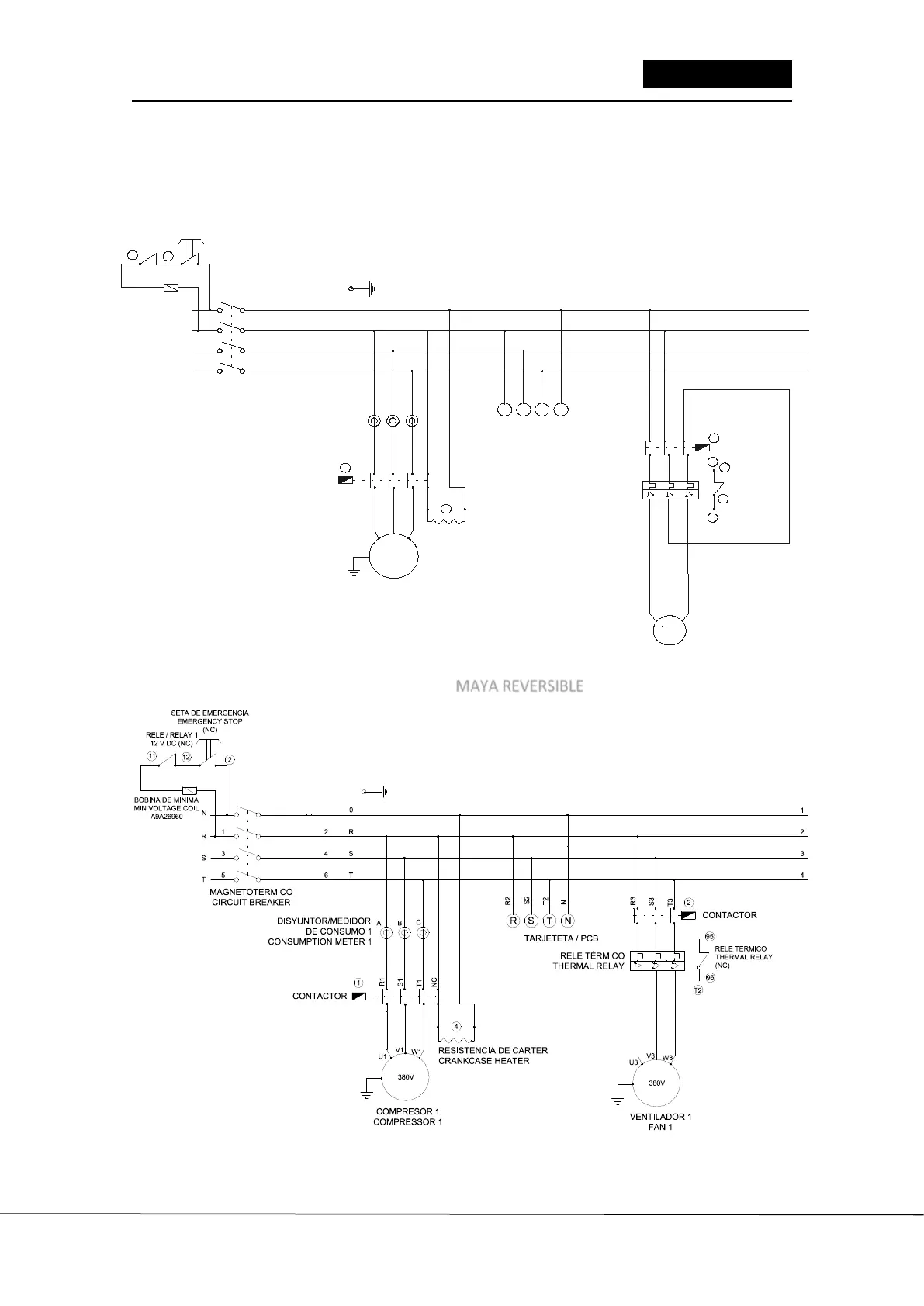
OPTIMA / MAYA SERIES · HEAT PUMP AIR/WATER
© FLUIDRA 2019 ALL RIGHTS RESERVED. PROPRIETARY DOCUMENT.
Pag: 51
ENGLISH
N
T
5
S
R
3
1
6 T
4
2
S
R
0
U1
V1
W1
T1
R1
S1
4
3
2
1
380V
R
S
T
N
TARJETETA / PCB
DISYUNTOR/MEDIDOR
DE CONSUMO 1
CONSUMPTION METER 1
A B
C
CONTACTOR
R
T
S
N
NC
RESISTENCIA DE CARTER
CRANKCASE HEATER
SETA DE EMERGENCIA
EMERGENCY STOP
(NC)
RELE / RELAY 1
12 V DC (NC)
12
11
BOBINA DE MINIMA
MIN VOLTAGE COIL
A9A26960
MAGNETOTERMICO
CIRCUIT BREAKER
2
6
COMPRESOR 1
COMPRESSOR 1
T2
RELÉ
TÉRMICO (NC)
R
N
CONTACTOR
RELÉ
TÉRMICO
96
95
1
U202
220V
V
1
VENTILADOR 1
T1
OPTIMA CHILLER 400 V / 50 Hz / III+
MAYA REVERSIBLE

Related product manuals