EasyManua.ls Logo

Atag Premier E-SHR 15 - 16 Example Diagrams for Connecting the Boiler; Radiator Installation Without Thermostat Valves

Atag Premier E-SHR 15
32 pages
Print Icon
To Next Page IconTo Next Page
To Next Page IconTo Next Page
To Previous Page IconTo Previous Page
To Previous Page IconTo Previous Page
Loading...
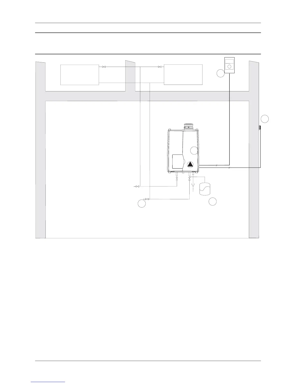
Installation instructions E-SHR series page 27
1 ATAG Premier boiler
2 expansion vessel
3 outside sensor ARV12
4 drain points
5 ATAG room thermostat
16 Example diagrams for connecting the boiler
16.1 Radiator installation without thermostat valves
connecting of the boiler to a radiator installation without thermostat valves figure 18
1
2
3
4
5

Related product manuals