EasyManua.ls Logo

Atlantic WOYA 080 LFCA - Overview of All the Electrical Connections; Cable Section and Protection Rating

Atlantic WOYA 080 LFCA
92 pages
Print Icon
To Next Page IconTo Next Page
To Next Page IconTo Next Page
To Previous Page IconTo Previous Page
To Previous Page IconTo Previous Page
Loading...
5.1.3 Overview of all the electrical connections
The wiring diagram for the hydraulic unit is shown in detail on gure 52, page 72.
5.2 Cable section and protection rating
The cable sections are given for information purposes only and do not exempt the installer from checking that these
sections correspond to the requirements and comply with the prevailing standards.
Power supply to outdoor unit:
Heat pump (HP) Electricity supply 230 V - 50 Hz
Models Maxi. power absorbed
Cable connection
(phase, neutral, earth)
Curve C circuit breaker size
extensa + 5 2530 W
3 x 1.5 mm² 16 A
extensa + 6 2875 W
extensa + 8 4025 W
3 x 2.5 mm² 20 A
extensa + 10 4255 W
extensa + 13 5060 W
3 x 6 mm² 32 A
extensa + 16 5750 W
Interconnection between the outdoor unit and the hydraulic unit: The hydraulic unit is powered by the outdoor
unit by means of a cable with 4 x 1.5 mm² (phase, neutral, earth, communication bus).
Power supply to the electrical back-ups (Option):
The hydraulic unit contains two stages of electrical back-ups installed in a heat exchange tank.
Heat pump (HP) Electrical back-ups Power supply to the electrical back-ups
Models Power Nominal current
Cable connection
(phase, neutral, earth)
Curve C circuit
breaker size
extensa +
5, 6, 8,10, 13 & 16
2 x 3 kW 26.1 A 3 x 6 mm² 32 A
bar
4
3
2
1
0
OK
ESC
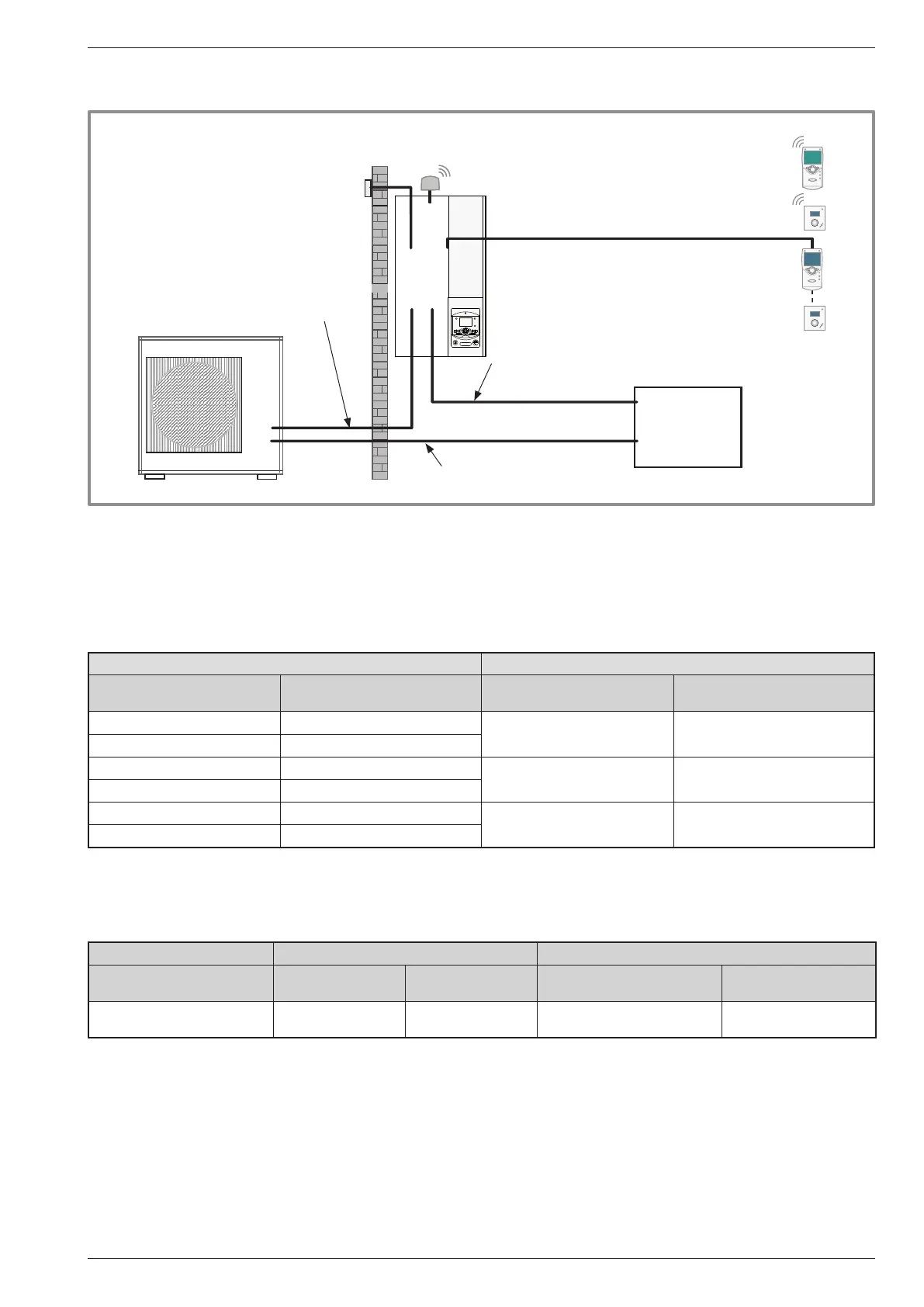
gure 33 - Overall layout of the electrical connections for a simple installation (1 heating circuit)
" Ensure that the general electrical power supply has been cut off before starting any repair work.
Outdoor sensor
Cable 2 x 0.75 mm²
Interconnection between
the outdoor unit and the hydraulic unit :
Phase, Neutral, Earth, Communication bus
Cable 4 x 1.5 mm²
Room control unit T78 (option)
Room thermostat T58 (option)
Room control unit T75 (option)
Cable 3 x 0.5 mm²
Room thermostat T55 (option)
Cable 2 x 0.5 mm²
DHW power supply
(Phase, Neutral, Earth)
(depending on heat pump power)
General electrical supply
(Phase, Neutral, Earth) (depending on heat pump power)
Electric
panel
or
or
or
Installation and operation manual "1734 - EN" - 37 -
Heat pump air/water split 1 service alféa extensa +

Table of Contents

Other manuals for Atlantic WOYA 080 LFCA

Related product manuals