EasyManua.ls Logo

Atlas Copco Air Compressor - Page 19

Atlas Copco Air Compressor
70 pages
To Next Page IconTo Next Page
To Next Page IconTo Next Page
To Previous Page IconTo Previous Page
To Previous Page IconTo Previous Page
Loading...
Instruction book
2920 1521 00 19
(1)
(2)
(3)
(4)
(5)
(6)
(7)
(8)
(9)
(10)
(11)
(8)
(9)
(12)
(13)
(14)
(15)
9820 4027 00
55098D
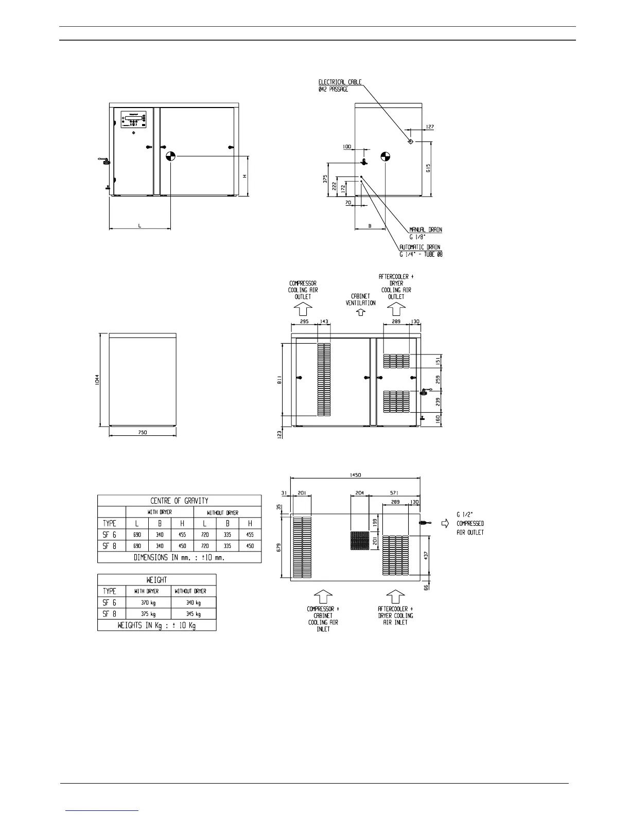
Fig. 2.4 Dimension drawing, SF 6-8 Multi

Table of Contents

Related product manuals