EasyManua.ls Logo

Atlas Copco G 15L - Page 47

Atlas Copco G 15L
88 pages
To Next Page IconTo Next Page
To Next Page IconTo Next Page
To Previous Page IconTo Previous Page
To Previous Page IconTo Previous Page
Loading...
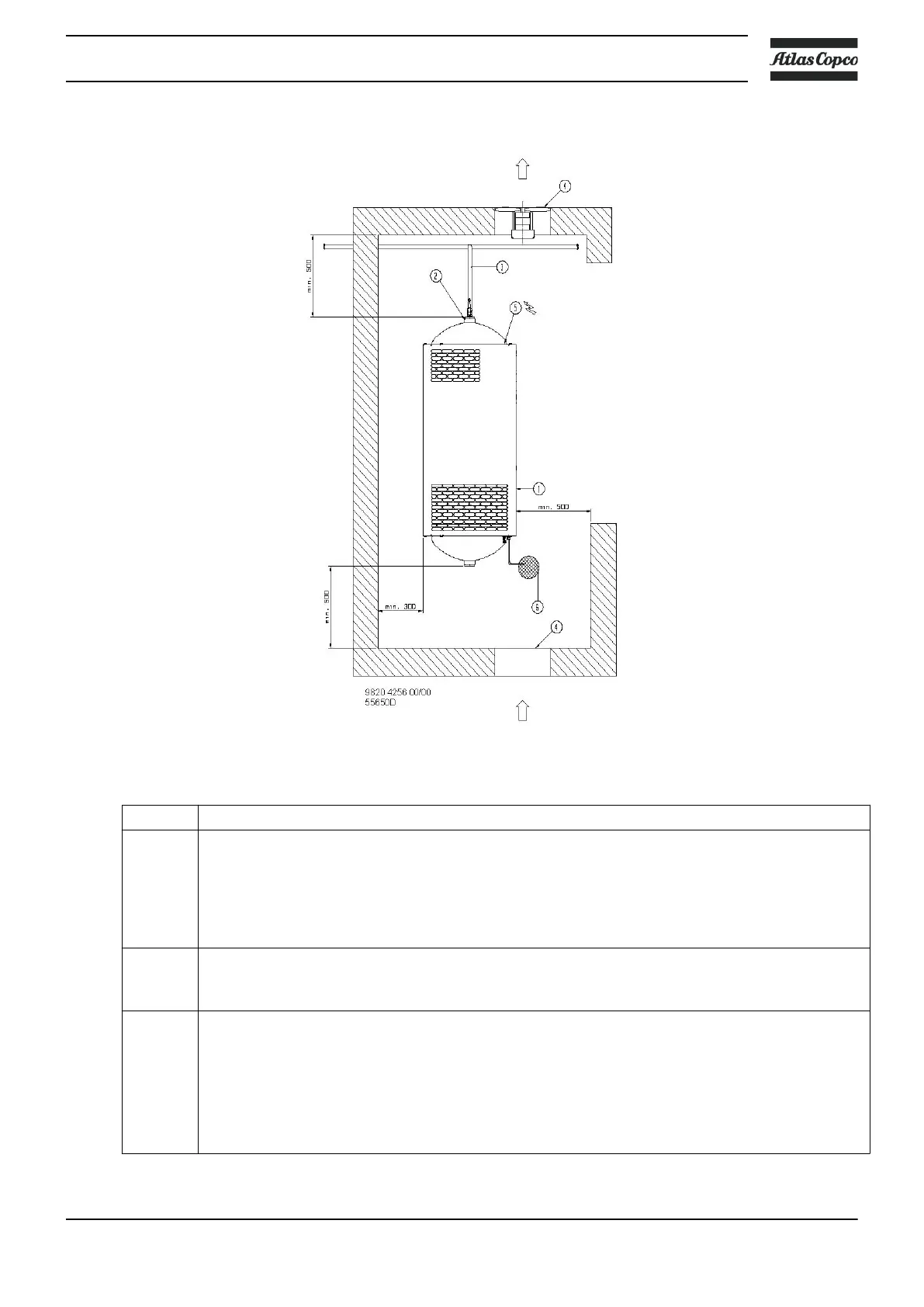
Installation proposal
Installation proposal, G 15L, G 18 and G 22
Ref. Action
1 Install the compressor on a solid, level floor suitable for taking its weight.
The recommended minimum distance between the top of the unit and the ceiling is 900 mm
(35.1 in).
The air receiver should not be bolted to the floor.
For tank-mounted units, the minimum distance between the wall and the back of the compressor
is 300 mm (19.5 in).
2 Position of the compressed air outlet valve.
Close the valve.
Connect the air net to the valve.
3 The pressure drop over the air delivery pipe can be calculated as follows:
Δp = (L x 450 x Q
c
1.85
) / (d
5
x P), with
d = Inner diameter of the pipe in mm
Δp = Pressure drop in bar (recommended maximum: 0.1 bar (1.5 psi))
L = Length of the pipe in m
P = Absolute pressure at the compressor outlet in bar
Q
c
= Free air delivery of the compressor in l/s
Instruction book
2920 7119 21 45

Table of Contents

Related product manuals