EasyManua.ls Logo

Atlas Copco ZT-90 - Page 35

Atlas Copco ZT-90
138 pages
To Next Page IconTo Next Page
To Next Page IconTo Next Page
To Previous Page IconTo Previous Page
To Previous Page IconTo Previous Page
Loading...
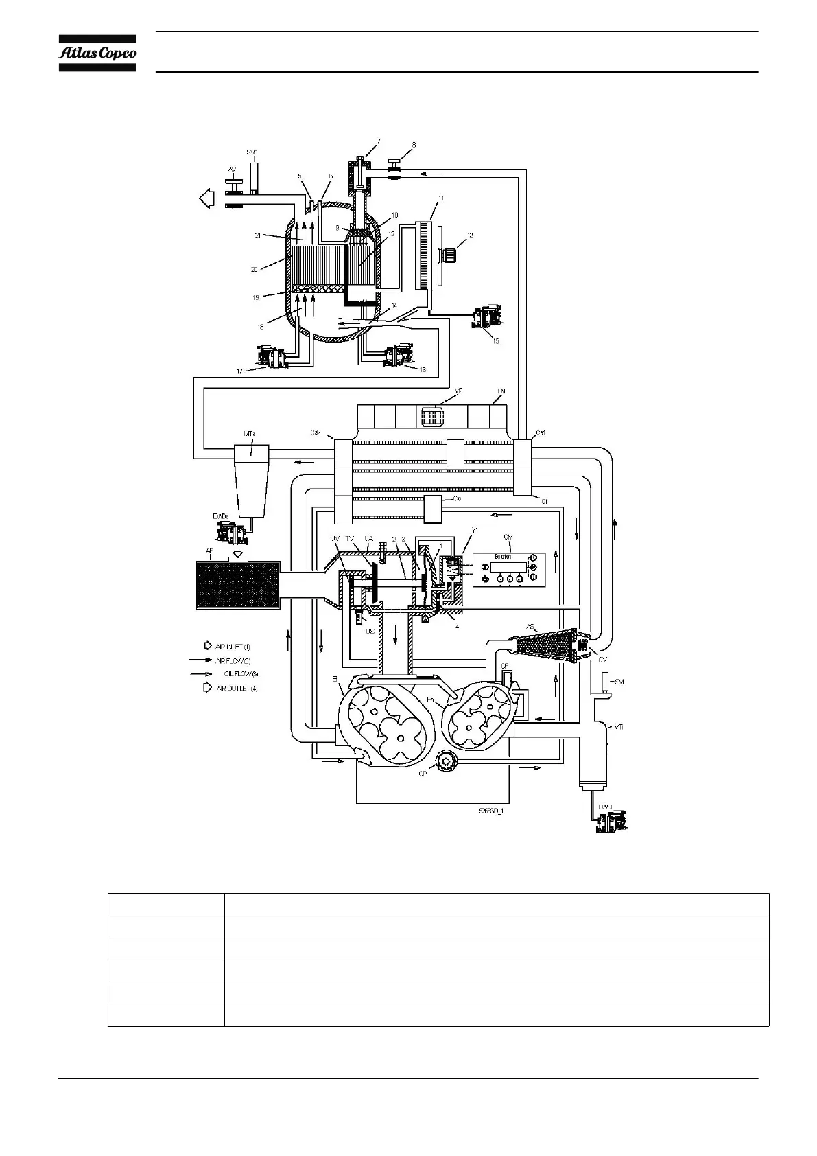
Flow diagram, ZT Full-Feature
Explanation of arrows
Ref Name
(1) Air inlet
(2) Air flow
(3) Oil flow
(4) Air outlet
(5) Water flow
Instruction book
34

Table of Contents

Related product manuals