EasyManua.ls Logo

Atlas Copco ZT-90 - Installation; Dimension Drawings

Atlas Copco ZT-90
138 pages
To Next Page IconTo Next Page
To Next Page IconTo Next Page
To Previous Page IconTo Previous Page
To Previous Page IconTo Previous Page
Loading...
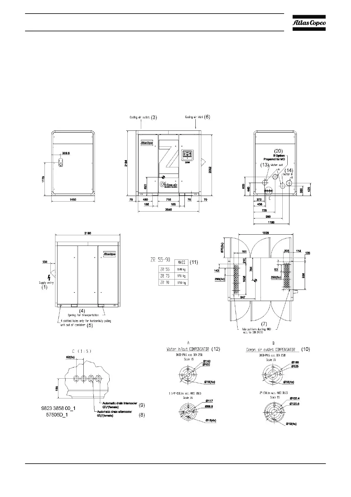
4 Installation
4.1 Dimension drawings
Dimension drawing, ZR Pack
Instruction book
73

Table of Contents

Related product manuals