EasyManua.ls Logo

Atlas Copco ZT-90 - Page 83

Atlas Copco ZT-90
138 pages
To Next Page IconTo Next Page
To Next Page IconTo Next Page
To Previous Page IconTo Previous Page
To Previous Page IconTo Previous Page
Loading...
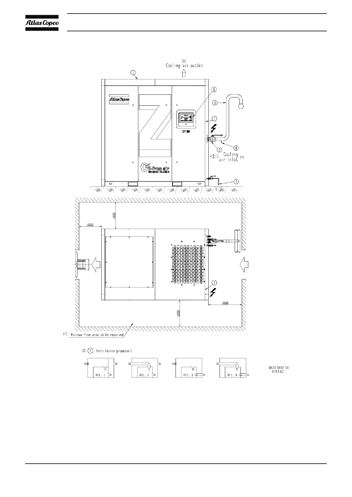
Installation proposal, ZT Pack
Instruction book
82

Table of Contents

Related product manuals