EasyManua.ls Logo

Autonics SFC Series - Page 7

Autonics SFC Series
13 pages
Print Icon
To Next Page IconTo Next Page
To Next Page IconTo Next Page
To Previous Page IconTo Previous Page
To Previous Page IconTo Previous Page
Loading...
-|Transparent Guide|-


  



 
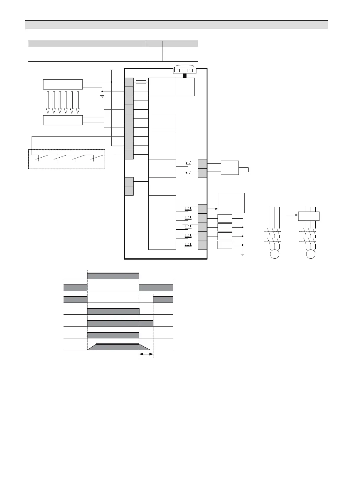
M53
S34
S24
S14
S54
S44
FUSE
SFL(A)Series
Emitter
SFL(A)Series
Receiver
OSSD1
OSSD2
M61
M62
NC
NC
GND
X2
X1
NC
NC
M12
M11
A2
A1
M52
M51
M22
M21
24VDC
GND
MC1MC2MC3MC4
MC1
MC2
M1 M2
MC3
MC4
S14
MC1
MC2
MC3
MC4
12345678
SW1












Safety



















󹃐






󹃐

Related product manuals