EasyManua.ls Logo

Autostacker A6S - Page 66

Default Icon
84 pages
Print Icon
To Next Page IconTo Next Page
To Next Page IconTo Next Page
To Previous Page IconTo Previous Page
To Previous Page IconTo Previous Page
Loading...
Autostacker™ Parking Lift 66 P/N 5900248Rev. B May 2021
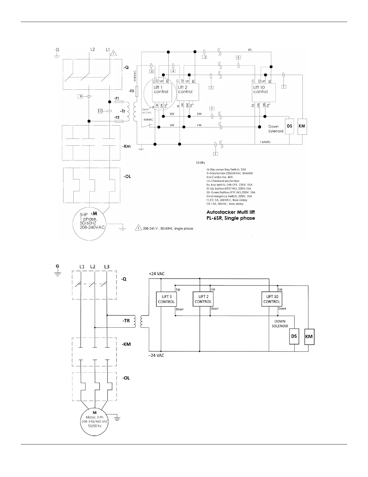
Master Power Unit, 1Ph:
Master Power Unit, 3Ph: