EasyManua.ls Logo

Bacharach 450 - Sensor Replacement

Default Icon
86 pages
Print Icon
To Next Page IconTo Next Page
To Next Page IconTo Next Page
To Previous Page IconTo Previous Page
To Previous Page IconTo Previous Page
Loading...
Maintenance ECA 450
64 Instruction 0024-9400
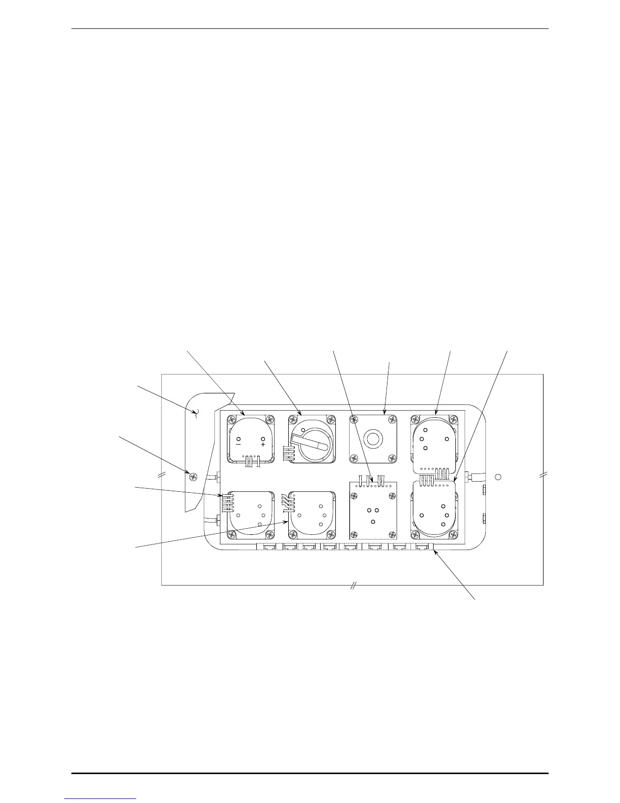
4.4 Sensor Replacement
The following sections described in detail how to replace the various sensors
located in the analyzer’s sensor compartment. Refer to Figure 4-3 for the
location and positioning of those sensors.
Note: When a sensor-error message appears at the bottom of the screen (refer
to Section “5.2 Problem Messages Displayed After Warm-Up”), it does not
necessarily mean that the sensor has become depleted or is defective. Before
replacing a sensor, refer to Section “5.4 Troubleshooting Guide” for other
possible causes of the error.
Caution: Static damage. When handling any printed circuit board, be sure to
follow all established industry procedures for the prevention of static buildup
that when discharged may damage electrical components on the board.
Figure 4-3. Sensor Compartment
SENSOR COVER
COVER SCREW
(2 PLACES)
O
2
SENSOR
& PCB
NO SENSOR,
PCB & LITHIUM
BATTERY
NO
2
SENSOR
& PCB
CO-Hi SENSOR
& PCB
HC SENSOR
& PCB
SO
2
SENSOR
& PCB
CO-Lo SENSOR
& PCB
CO-Lo
CO-Hi
O
2
NO
HC
SO
2
NO
2
PCB CONNECTOR
JACKS
NOTE: FOR CLARITY, THE WIRES BETWEEN THE
SENSOR PRINTED CIRCUIT BOARDS
AND THEIR ASSOCIATED CONNECTOR
JACKS ARE NOT SHOWN.
Optional
OPTIONAL
(Sensor Blank
w/ O-Ring shown)

Table of Contents

Related product manuals