EasyManua.ls Logo

Backyard Discovery BEACH FRONT - Basic Setup Dimensions; Important Assembly Notes

Backyard Discovery BEACH FRONT
70 pages
Print Icon
To Next Page IconTo Next Page
To Next Page IconTo Next Page
To Previous Page IconTo Previous Page
To Previous Page IconTo Previous Page
Loading...
Important Assembly Notes
1) While assembling unit, take time before and after each phase to make sure fort is level. If fort is
not level, assembly will be difficult and improper assembly may result. Extra care must be taken to
ensure the fort is square.
2) Tighten bolts securely, tighten nuts on bolts flush to the tube or member.
3) Pay close attention to the ITEMS NEEDED FOR EACH PHASE. They can be a valuable aid when
sorting your wood and hardware. Assembly will be made easier if items are sorted by phase.
4) Pay close attention to make sure you are using the correct hardware in the correct phases. Using
incorrect hardware may result in improper assembly.
5) Whenever a T-nut is used, follow these directions. Place T-nut in pre-drilled hole. Tap in with hammer.
Place bolt with washers in the opposite side. Hand tighten to make sure the bolt is in the T-nut.
DO NOT over tighten.
6) Read the steps of each phase thoroughly. The written steps may include important information not
shown in the illustrations.
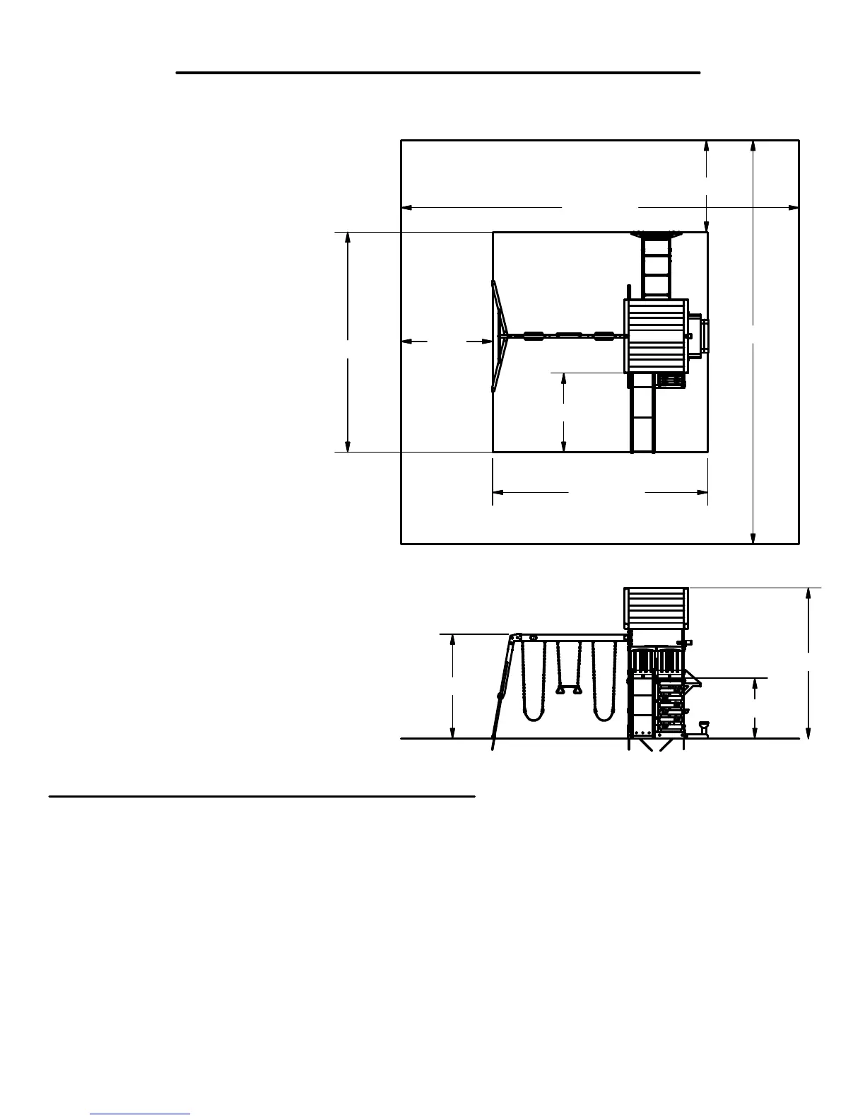
Basic Setup Dimensions
Place the set on level ground, not less than 6 ft [2 m] from any structure or obstruction such
as a fence, garage, house, overhanging branches, laundry lines, or electrical wires.
Safe Play Zone
Safe play height: 14'-11 1/2" [2.7 m]
M
aximum fall height: 6'-4 1/2" [1.9 m]
General Information:
Your set has been designed and
engineered for children only and
for residential use only.
A maximum of 150 lbs.
per child is recommended for
play activities designed for individual use.
A maximum of 120 lbs. per child
is recommended for play activities
designed for multiple child use.
A maximum of 9 children
is recommended for this swing set.
«
S
P
A
N
S
H
6'-0"
14'-1 1/8"
14'-4 5/8"
5'-2"
6'-0"
6'-9 13/16"
9'-10 1/4"
4'-0"
26'-1 1/8"
26'-4 5/8"

Other manuals for Backyard Discovery BEACH FRONT

Related product manuals