EasyManua.ls Logo

baltur BGN 50 - Page 33

baltur BGN 50
Print Icon
To Next Page IconTo Next Page
To Next Page IconTo Next Page
To Previous Page IconTo Previous Page
To Previous Page IconTo Previous Page
Loading...
33
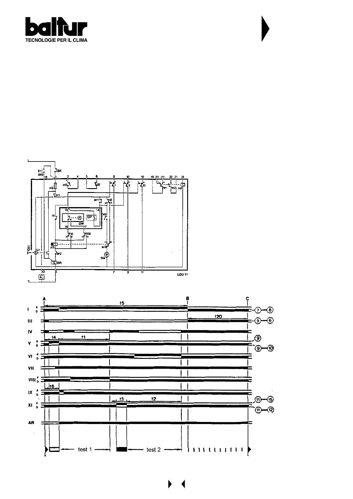
Programma di comando
t
4
5s Messa alla pressione atmosferica del circuito da controllare
t
6
7,5s Tempo tra l’avviamento e l’eccitazione del relè principale “AR”
t
1
22,5s 1° fase di verifica con pressione atmosferica
t
3
5s Messa in pressione del gas del circuito di controllo
t
2
27,5s 2° fase di verifica con pressione del gas
t
5
67,5s Durata totale della verifica di tenuta, fino al consenso di funzionamento del bruciatore
t
20
22,5s Ritorno alla posizione di riposo del programmatore = predisposto per una nuova verifica.
AL segnalazione di allarme a distanza
AR relè principale con i contatti ‘ar...’
AS fusibile dell’apparecchio
BR relè di blocco con i contatti ‘br...’
DW pressostato esterno (controllo della tenuta)
EK pulsante di sblocco
GP pressostato esterno (della pressione del gas di rete)
HR relè ausiliario con i contatti ‘hr...’
L1 lampada di segnalazione anomalia dell’apparecchio
SK interruttore di linea
I ... XI contatti delle camme del programmatore
APPARECCHIATURA DI CONTROLLO
TENUTA VALVOLE GAS LDU 11...
Svolgimento del programma
Morsetti - attivati -
dellapparecchio o dei
collegamenti elettrici

Related product manuals