EasyManua.ls Logo

Bard WH381 - Optional Outdoor Thermostat Applications; Figure 9 Compressor Cutoff and Outdoor Thermostat Wiring; Figure 10 Compressor Cutoff and Outdoor Thermostat Wiring; Table 3 Thermostat Wire Size

Default Icon
24 pages
Print Icon
To Next Page IconTo Next Page
To Next Page IconTo Next Page
To Previous Page IconTo Previous Page
To Previous Page IconTo Previous Page
Loading...
Manual 2100-342
I
Page 15 of 24
TABLE 3
THERMOSTAT WIRE SIZE
remrofsnarT
AVALFeguaGeriW
mumixaM
ecnatsiD
teeFnI
553.2
eguag02
eguag81
eguag61
egaug41
egaug21
54
06
001
061
052
OPTIONAL OUTDOOR THERMOSTAT
APPLICATIONS
Since most equipment at the time of manufacture is not
designated for any specific destination of the country
and are installed in areas not approaching the lower
outdoor temperature range, outdoor thermostats are not
factory installed as standard equipment, but are offered
as an option. There are also different applications for
applying outdoor thermostats. The set point of either
type of outdoor thermostat application is variable with
geographic region and sizing of the heating equipment
to the individual structure. Utilization of the heating
Application Data, and the heat loss calculation of the
building are useful in determining the correct set points.
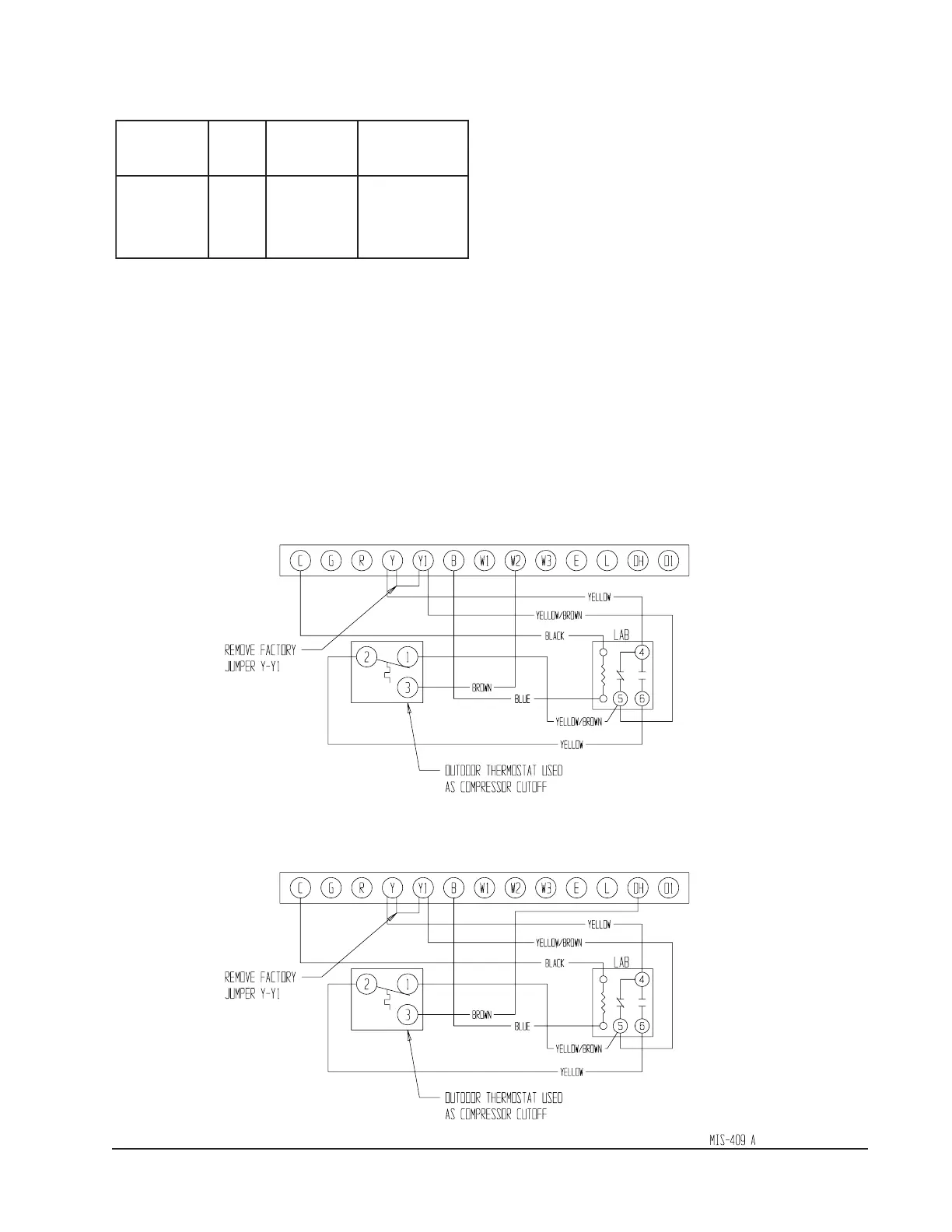
NOTE: The additional LAB (low ambient bypass) relay
is required to prevent heater operation during low
temperature cooling operation.
OPTIONAL COMPRESSOR CUTOFF
THERMOSTAT (See Figures 9 and 10)
Heat pump compressor operation at outdoor
temperatures below 0°F are neither desirable nor
advantageous in term of efficiency. An outdoor
thermostat can be applied to take the mechanical heating
(compressor) off line, and send the (compressor) signal
to energize electric heat in its place (to make electric
heat first stage heating). This can also be applied to
bank the quantity of available electric heat. For
example: A heat pump operates with 10KW second
stage heat – once the outdoor thermostat has switched
then operates 15KW without the compressor as first
stage heat.
FIGURE 9
COMPRESSOR CUTOFF THERMOSTAT WIRING
4 – 10KW 1 PH – 6 & 9KW 3 PH
FIGURE 10
COMPRESSOR CUTOFF THERMOSTAT WIRING
15 – 20KW 1 PH AND 3 PH

Table of Contents

Related product manuals