EasyManua.ls Logo

Barnes 3SHV - START-UP OPERATION; Voltage and Phase Check; Pump Rotation Verification; Moisture Sensor Control Test

Default Icon
40 pages
Print Icon
To Next Page IconTo Next Page
To Next Page IconTo Next Page
To Previous Page IconTo Previous Page
To Previous Page IconTo Previous Page
Loading...
18
B-5) When Used with a Variable Speed Drive:
Maximum turndown should not exceed 2:1. Drive should be
set to operate in constant torque mode.
It is advisable that all three phase control panels be
purchased from the factory.
SECTION: C START-UP OPERATION
C-1) Check Voltage and Phase:
Before operating pump, compare the voltage and phase
information stamped on the pump’s identication plate to the
available power.
C-2) Check Pump Rotation:
Before putting pump into service for the rst time, the motor
rotation must be checked. Improper motor rotation can result
in poor pump performance and can damage the motor and/
or pump. To check the rotation, suspend the pump freely,
momentarily apply power and observe the “kickback”.
“Kickback” should always be in a counter-clockwise direction
as viewed from the top of the pump motor housing and will
always be in the opposite direction of the rotation arrows
cast in the pump volute.
C-2.1) Incorrect Rotation for Three-Phase Pumps:
In the event that the rotation is incorrect for a three-phase
installation, interchange any two power cable leads at
the control box. Recheck the “kickback” rotation again by
momentarily applying power.
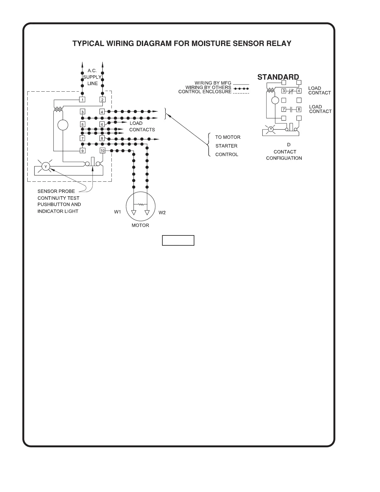
C-2.2) Test Procedure For Moisture Sensor Control:
With a moisture detection control, a normally closed push
button and neon indicating lamp is typically provided as a
means of checking the moisture sensing components. When
the push button is depressed, the indicating lamp will be
illuminated to indicate (A) power is supplied to the control,
(B) the control is operative, and (C) wiring to the moisture
sensing probes in the motor is intact. This procedure should
be performed periodically to conrm integrity of the circuit.
C-3) Start-Up Report:
Included at the end of this manual is one start-up report
sheet, this sheet is to be completed as applicable. Return
a copy to Barnes and store the second in the control panel
or with the pump manual. It is important to record this data
at initial start-up since it will be useful to refer to should
servicing the pump be required in the future.
C-3.1) Identication Plate:
Record the numbers from the pump’s identication plate on
the START-UP REPORT provided at the end of the manual
for future reference.
FIGURE 5

Related product manuals