EasyManua.ls Logo

Bartscher 116.402 - Page 103

Bartscher 116.402
Print Icon
To Next Page IconTo Next Page
To Next Page IconTo Next Page
To Previous Page IconTo Previous Page
To Previous Page IconTo Previous Page
Loading...
- 102 -
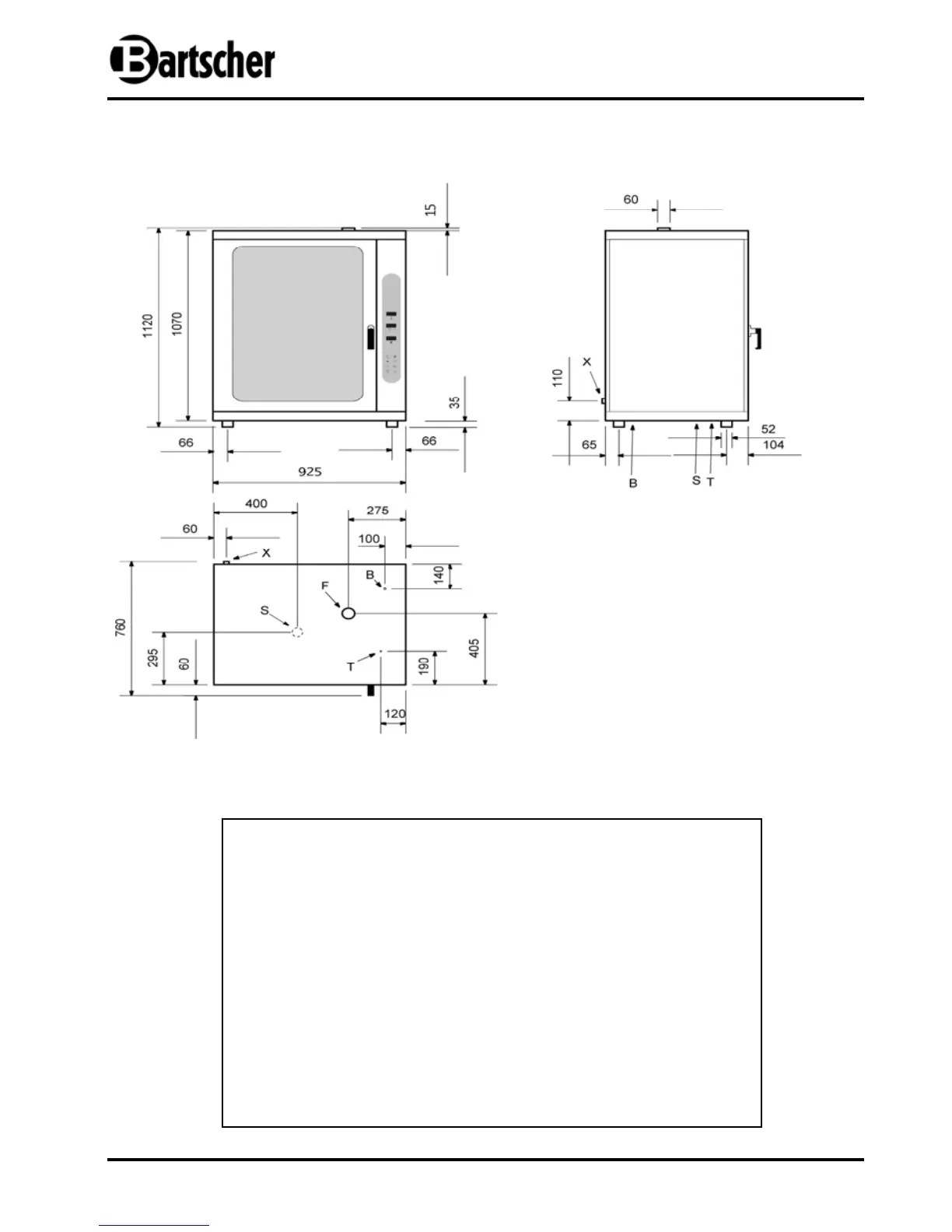
Combi-steamer “Easy” 10 x 1/1 GN
Combi-steamer “Easy” 10 x 1/1 GN, 10 x 600x400
Aansluitwaarde: 12,0 kW / 3 NAC 380-400 V
Afmetingen: B 925 x D 760 x H 1120 mm
Afstand tussen de bakblikken: 80 mm
Gewicht: 110 kg
Art. nr.: 116.810
Legenda:
X = wateraanvoer 3/4“
F = stoomuitlaat 60 mm
B = stroomtoevoer
T = veiligheidsthermostaat
S = wateruitlaat
A
fmetingen in mm

Table of Contents

Related product manuals