EasyManua.ls Logo

Bartscher 116.402 - Dane Techniczne

Bartscher 116.402
Print Icon
To Next Page IconTo Next Page
To Next Page IconTo Next Page
To Previous Page IconTo Previous Page
To Previous Page IconTo Previous Page
Loading...
- 130 -
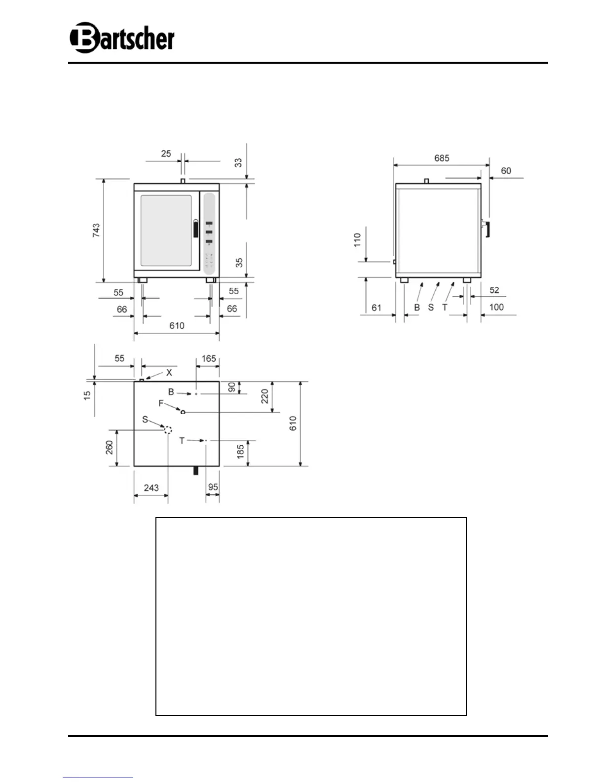
4.2 Dane techniczne
Piec konwekcyjno-parowy 5 x 2/3 GN
Piec konwekcyjno-parowy 5 x 2/3 GN
Moc przyłączeniowa: 3,3 kW / 220 V
Wymiary: szer. 610 x gł. 685 x wys. 743 mm
Rozstaw między blachami: 70 mm
Waga: 50 kg
Nr art.: 116.402
Objaśnienia:
X = wlot wody 3/4“
F = spust pary 25 mm
B = doprowadzenie prądu
T = termostat bezpieczeństwa
S = spust wody
Wymiary w mm

Table of Contents

Related product manuals