EasyManua.ls Logo

Bartscher 116.402 - Page 13

Bartscher 116.402
Print Icon
To Next Page IconTo Next Page
To Next Page IconTo Next Page
To Previous Page IconTo Previous Page
To Previous Page IconTo Previous Page
Loading...
- 12 -
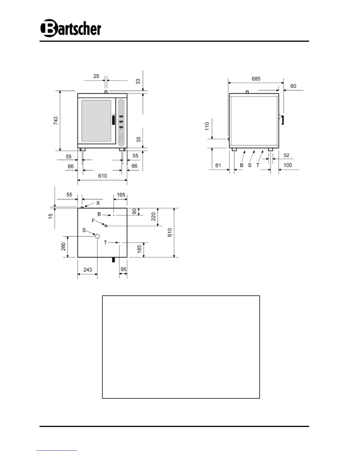
Kombidämpfer „Easy“ 5 x 2/3 GN
Kombidämpfer „Easy“ 5 x 2/3 GN
Anschlusswert: 3,3 kW / 220 V
Abmessungen: B 610 x T 685 x H 743 mm
Abstand zwischen den Blechen: 70 mm
Gewicht: 50 kg
Best.-Nr.: 116.802
Erläuterungen
X = Einlauf Wasser 3/4“
F = Dampfablass 25 mm
B = Stromzufuhr
T = Sicherheitsthermostat
S = Wasserablass
Abmessungen in mm

Table of Contents

Related product manuals