EasyManua.ls Logo

Bartscher 116.402 - Page 15

Bartscher 116.402
Print Icon
To Next Page IconTo Next Page
To Next Page IconTo Next Page
To Previous Page IconTo Previous Page
To Previous Page IconTo Previous Page
Loading...
- 14 -
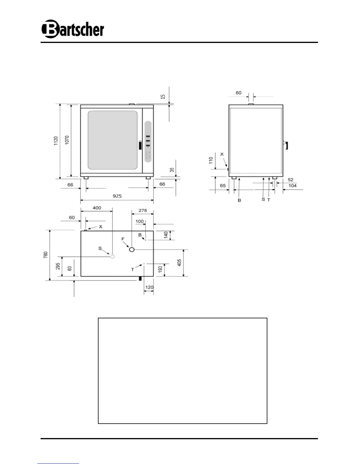
Kombidämpfer „Easy“ 10 x 1/1 GN
Kombidämpfer „Easy“ 10 x 1/1 GN, 10 x 600x400
Anschlusswert: 12,0 kW / 3 NAC 380-400 V
Abmessungen: B 925 x T 760 x H 1120 mm
Abstand zwischen den Blechen: 80 mm
Gewicht: 110 kg
Best.-Nr.: 116.810
Erläuterungen
X = Einlauf Wasser 3/4“
F = Dampfablass 60 mm
B = Stromzufuhr
T = Sicherheitsthermostat
S = Wasserablass
Abmessungen in mm

Table of Contents

Related product manuals